- お電話でのお問い合わせはこちら
- 048-423-5568
- メールでのお問い合わせはこちら
物件動画
| 物件名 | イトウ倉庫 埼玉県春日部市豊野町2丁目 | ||
|---|---|---|---|
| 物件種別 | 売倉庫 | 業種 | |
| 所在地 | 埼玉県春日部市豊野町2丁目 | ||
| 交通 | |||
| 交通 | 東武伊勢崎線「一ノ割」駅 徒歩37分 | ||
| 価格 | 14,900万円 | ||
| 土地面積 | 826.49m² | 建物床面積 | 662.68m² |
| 坪単価 | |||
| 入居日 | 時期指定 | ||
| 土地権利 | 所有権 | 地目 | |
| 現況 | 空家 | 取引態様 | |
| 建物構造 | 鉄骨造地上3階 | 用途地域 | 工業地域 |
| 建ぺい率 | 容積率 | ||
| 駐車場区分 | 駐車場料金 | ||
| 接道状況 | |||
| 築年月 | 1985年9月 | ||
| こだわり条件 | |||
| 備考 | |||
| 最終更新日 | 2026年03月25日 | ||
- お電話でのお問い合わせはこちら
- 048-423-5568
- メールでのお問い合わせはこちら

























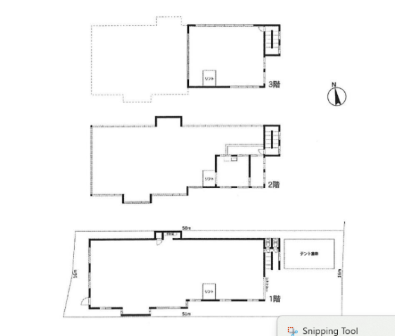
【春日部豊野・250坪】
リフト完備の3階建売倉庫!工業団地内・8m公道面の所有権物件
【埼玉県春日部市・売倉庫】149,000,000円!豊野工業団地内の確固たる操業環境が、事業の安定性を約束する🏠
春日部市豊野町2丁目エリア。工業地域内。東武伊勢崎線「一ノ割」駅より距離2,600m。配送効率と保管キャパシティを高い次元で両立させた、鉄骨造3階建ての所有権物件です!
土地面積は約826.49m²(約250.01坪)、建物延面積は約662.68m²(約200.46坪)。最大の特徴は、工業団地内という卓越した操業環境と、上下階の荷役を支える荷物用リフト、そして南東側8.0m公道に面した【緯度 35.9626, 経度 139.7828】の良好なアクセス性能です🚗
1985年9月築、テント倉庫付。現況空につき引渡相談。春日部エリアで、自社専用の物流デポや製造拠点として資産価値の高い一括物件を求める事業者様に推奨いたします。
メリット
工業地域ならではの自由度の高い運用ポテンシャル
周辺環境を気にせず操業できる工業団地内の立地は、物流・製造業にとって最大の資産。リフト完備の3階建構造により、限られた敷地を最大効率で活用した拠点運営が可能です。
大型車両に対応するゆとりある接道条件
幅員8.0mの広い公道に16.0m接面しており、大型トラックの取り回しもストレスフリー。都市ガス・本下水への接続も相談可能で、将来の業態変更にも柔軟に対応します。
デメリット
中長期的な建物メンテナンスの計画性
築40年を経過する鉄骨造物件につき、現況有姿での取得を前提とした、将来のリフト更新や外装メンテナンス費用を考慮した収支シミュレーションを推奨します。
従業員のマイカー通勤体制の整備
駅から離れた工業団地内の立地につき、周辺環境を活かしたスタッフの確保と、敷地内および近隣での駐車場確保を含めた通勤支援体制の構築が肝要です。