- お電話でのお問い合わせはこちら
- 048-423-5568
- メールでのお問い合わせはこちら
物件動画
| 物件名 | 契約済み 住居付売工場 東京都足立区神明2丁目 | ||
|---|---|---|---|
| 物件種別 | 売工場 | 業種 | |
| 所在地 | 東京都足立区神明2丁目 | ||
| 交通 | 首都高速6号三郷線「八潮南IC」 | ||
| 交通 | つくばエクスプレス「六町」駅 徒歩25分 | ||
| 価格 | 16,500万円 | ||
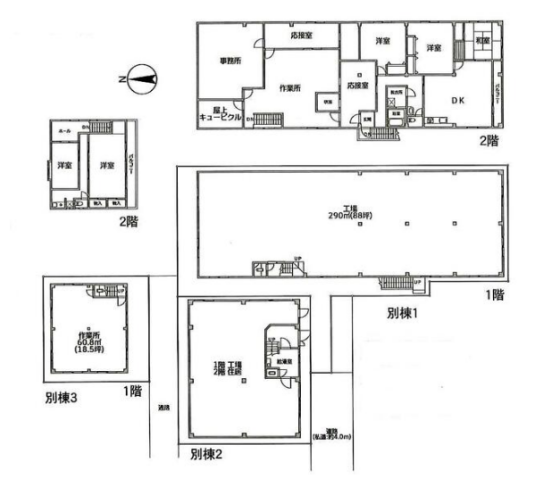
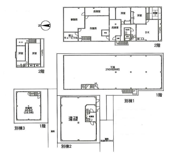
| 土地面積 | 672.44m² | 建物床面積 | 912.46m² |
| 坪単価 | 597,804円 | ||
| 入居日 | 相談 | ||
| 土地権利 | 所有権 | 地目 | |
| 現況 | 居住中 | 取引態様 | |
| 建物構造 | 鉄骨造 | 用途地域 | 準工業地域 |
| 建ぺい率 | 60% | 容積率 | 200% |
| 駐車場区分 | 駐車場料金 | ||
| 接道状況 | |||
| 築年月 | 1978年10月 | ||
| こだわり条件 | |||
| 備考 | |||
| 最終更新日 | 2026年05月05日 | ||
- お電話でのお問い合わせはこちら
- 048-423-5568
- メールでのお問い合わせはこちら


























契約済み
【足立区・276坪・クレーン&キュービクル完備の住居付大型売工場】
【足立区神明2丁目・売工場】価格165000000円!準工業地域の希少な住居併用製造拠点🏠
つくばエクスプレス線「六町」駅圏内。ホームセンター・スーパーが隣接する、生活とビジネスの両面で利便性に優れた準工業地域の「住居付売工場」です。
延床面積は約912.46m²(276.01坪)。場内クレーン、電動シャッター、そして高圧受電設備(キュービクル)を完備しており、取得後すぐに本格的な操業を開始できる実務スペックを誇ります🚗
1978年築の別棟1を筆頭とした3棟構成。契約不適合責任免責等の留意点はありますが、大田区・足立区エリアで職住近接の大規模拠点を構えたい事業者様に最適な、資産価値の高い所有権物件です。
メリット
即戦力となる重厚な製造設備とインフラ
工場内にはクレーンや電動シャッターに加え、電力需要に対応するキュービクルが設置済みです。多額の初期設備投資を抑えつつ、スムーズな事業立ち上げをサポートします。
生活と事業を支える準工業地域の好立地
周辺には商業施設が充実しており、従業員の確保や日常の利便性が抜群です。準工業地域設定により、幅広い製造業種への対応が可能で、長期的な拠点維持に適しています。
デメリット
再建築不可区画およびコンプライアンス上の制約
別棟3(別棟B)が再建築不可となっているほか、全体として建築基準法への抵触可能性が指摘されています。融資利用や将来の建て替え計画については慎重な精査が求められます。
現状渡し・契約不適合責任免責の取引条件
昭和53年築の建物を含む現況引き渡しのため、主要構造部や設備の経年劣化については事前の内見で十分に確認する必要があります。維持修繕コストを含めた資金計画を推奨します。