| 物件名 | 茅ヶ崎3倉庫 神奈川県茅ヶ崎市今宿825−1 | ||
|---|---|---|---|
| 物件種別 | 倉庫 | 業種 | |
| 所在地 | 神奈川県茅ヶ崎市今宿825−1 | ||
| 交通 | 新湘南バイパス 茅ヶ崎西IC | ||
| 交通 | JR東海道本線「平塚」駅 徒歩38分 | ||
| 賃料 | 1,633,500円(税込) | 共益費・管理費 | |
| 敷金・保証金 | 4ヶ月 | 敷金・保証金償却 | 1ヶ月 |
| 礼金 | 1ヶ月 | 更新料 | |
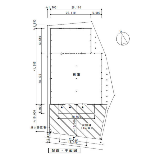
| 土地面積 | 1,979m² | 建物床面積 | 1,090.9m² |
| 坪単価 | |||
| 入居日 | 時期指定【2026年4月1日】 | ||
| 契約期間 | 2年 | 現況 | 居住中 |
| 賃貸借区分 | 定期賃貸借 | 取引態様 | 仲介 |
| 建物構造 | 鉄骨造地上1階 | 用途地域 | 第一種中高層住居専用地域 |
| 建ぺい率 | 容積率 | ||
| 駐車場区分 | 敷地内 | 駐車場料金 | |
| 接道状況 | 一方公道南5.4m | ||
| 築年月 | 1994年6月 | ||
| こだわり条件 | 平屋建て , 300坪~ | ||
| 備考 | |||
| 最終更新日 | 2025年11月07日 | ||


































担当者からのコメント
神奈川県茅ヶ崎市今宿 平屋建て倉庫 330坪
■正面シャッター幅:4.0m 高さ:4.0m 2箇所
■敷地:599坪(1,980.16m²)
■荷捌き場:157坪(519.00m²)
■新湘南バイパス 茅ヶ崎西ICより500m
■事務所なし
■第一種中高層住居専用地
問い合わせは下記の連絡先まで
048-423-5568
info@souko.tokyo
