| 物件名 | 所沢市林二丁目貸工場 埼玉県所沢市林2丁目70 | ||
|---|---|---|---|
| 物件種別 | 工場 | 業種 | |
| 所在地 | 埼玉県所沢市本郷8−1 | ||
| 交通 | 圏央道「入間IC」 | ||
| 交通 | 西武池袋線「狭山ヶ丘」駅 徒歩29分 | ||
| 賃料 | 11,880,000円(税込) | 共益費・管理費 | |
| 敷金・保証金 | 6ヶ月 | 敷金・保証金償却 | |
| 礼金 | 1ヶ月 | 更新料 | 新賃料1ヶ月分 |
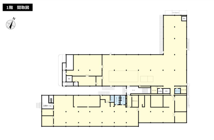
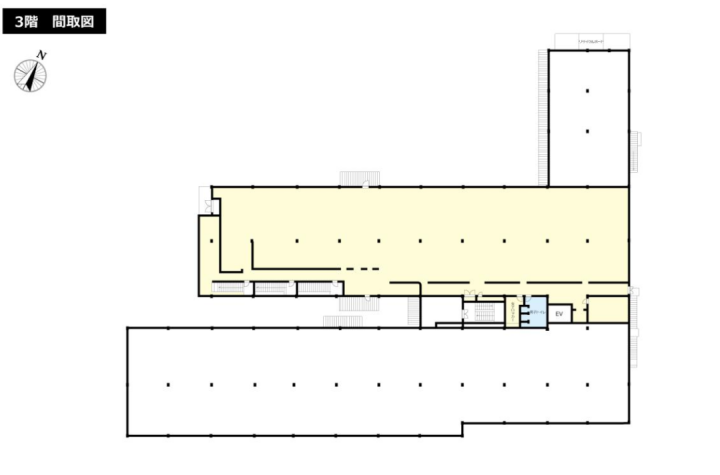
| 土地面積 | 5,782.44m² | 建物床面積 | 7,893.83m² |
| 坪単価 | |||
| 入居日 | 相談 | ||
| 契約期間 | 3年 | 現況 | 空家 |
| 賃貸借区分 | 普通賃貸借 | 取引態様 | 仲介 |
| 建物構造 | 鉄骨造地上5階 | 用途地域 | 市街化調整区域 |
| 建ぺい率 | 容積率 | ||
| 駐車場区分 | 敷地内 | 駐車場料金 | |
| 接道状況 | 一方公道 | ||
| 築年月 | 1981年10月 | ||
| こだわり条件 | 精密工場 , 研究所 , 事務所がある , 大型車進入可 , 1000坪~ | ||
| 備考 | |||
| 最終更新日 | 2026年05月05日 | ||




































担当者からのコメント
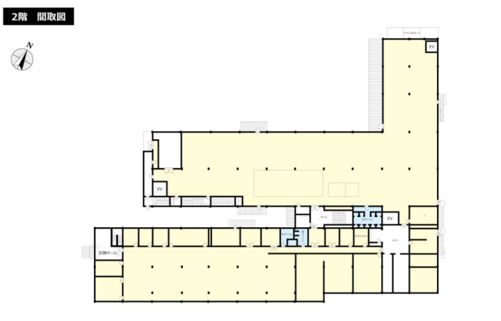
埼玉県所沢市 大規模工場・倉庫
【約2380坪の大型拠点】
元大手電機メーカーの工場 A棟・B棟あり
敷地面積約1749坪、建物延床面積約2387坪という、希少なスケールの5階建て大型工場・倉庫です。
■アクセス■
★圏央道「入間IC」から約2.7km
■都市計画■
市街化調整区域
所沢市の用途地域の確認はこちらから
・所沢市地理情報システム