| 物件名 | 貸工場 埼玉県吉川市中野303 | ||
|---|---|---|---|
| 物件種別 | 工場 | 業種 | |
| 所在地 | 埼玉県吉川市中野303 | ||
| 交通 | |||
| 交通 | JR武蔵野線「吉川」駅 バス8分 停歩1分 | ||
| 賃料 | 437,800円(税込) | 共益費・管理費 | |
| 敷金・保証金 | 2ヶ月 | 敷金・保証金償却 | |
| 礼金 | 1ヶ月 | 更新料 | 新賃料1ヶ月分 |
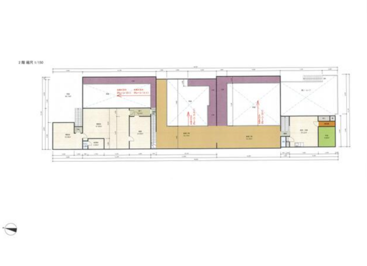
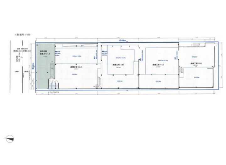
| 土地面積 | 623.97m² | 建物床面積 | 757.31m² |
| 坪単価 | 2,401円 | ||
| 入居日 | |||
| 契約期間 | 3年 | 現況 | 空家 |
| 賃貸借区分 | 普通賃貸借 | 取引態様 | |
| 建物構造 | 鉄骨造地上2階 | 用途地域 | 工業地域 |
| 建ぺい率 | 容積率 | ||
| 駐車場区分 | 駐車場料金 | ||
| 接道状況 | |||
| 築年月 | 1972年7月 | ||
| こだわり条件 | 商品保管倉庫 , 準工業地域 工業地域 , 事務所がある , 平屋建て , 100坪~ | ||
| 備考 | |||
| 最終更新日 | 2026年04月07日 | ||







































おすすめコメント
「工業地域」内の貸工場・倉庫
ホイストクレーン4基残置あり(メンテナンスは借主負担)
・奥行き約48mの長尺な作業スペース
・40m以上の長尺資材も対応可能
・前業種は塩ビなどの資材制作加工業
・天井クレーン(ホイスト)4基が設置済み
【メリット】
・設備充実: ホイストクレーン4基付きで初期費用を抑制できます。
・作業性: 奥行48m・車両乗り入れ可で、長尺物や重量物の扱いが楽です。
・工業地域 音や振動に比較的寛容な「工業地域」です。
【デメリット(事前の注意点)】
・駐車場なし: 敷地内になく、近隣で別途確保が必要です。
・建物状況: 築年数が古く(昭和47年築〜)、未登記部分を含みます。
・電力: キュービクルがないため、電気容量は要確認です。
■アクセス■
常磐自動車道 三郷スマートIC
■用途地域■
工業地域