| 物件名 | 倉庫 埼玉県川口市上青木2丁目17−1 | ||
|---|---|---|---|
| 物件種別 | 倉庫 | 業種 | |
| 所在地 | 埼玉県川口市上青木2丁目17−1 | ||
| 交通 | 外環自動車道 川口西IC | ||
| 交通 | 埼玉高速鉄道「鳩ヶ谷」駅 | ||
| 賃料 | 450,000円 | 共益費・管理費 | |
| 敷金・保証金 | 2ヶ月 | 敷金・保証金償却 | |
| 礼金 | 1ヶ月 | 更新料 | 新賃料1ヶ月分 |
| 土地面積 | 建物床面積 | 223.05m² | |
| 坪単価 | 6,670円 | ||
| 入居日 | 相談 | ||
| 契約期間 | 3年 | 現況 | 居住中 |
| 賃貸借区分 | 普通賃貸借 | 取引態様 | |
| 建物構造 | 鉄骨造地上2階 | 用途地域 | |
| 建ぺい率 | 容積率 | ||
| 駐車場区分 | 駐車場料金 | ||
| 接道状況 | 角地公道 | ||
| 築年月 | 1987年2月 | ||
| こだわり条件 | 商品保管倉庫 , 2階建て以上 | ||
| 備考 | |||
| 最終更新日 | 2026年05月05日 | ||









































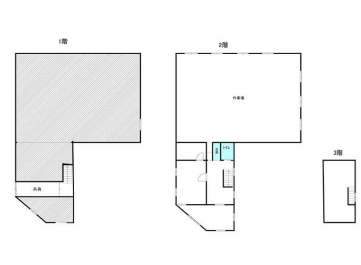
【川口市上青木・約67.4坪】
駐車場数台確保可能!2階〜3階部分の広々貸倉庫
【埼玉県川口市・貸倉庫】45万円!まとまった広さの作業空間🏠
川口市上青木2丁目エリア。埼玉高速鉄道「鳩ヶ谷」駅徒歩19分。
建物約67.4坪。建物の2階および3階部分を利用できる物件です!
月額8,000円で駐車場を数台分確保でき、車両の運用もスムーズ🚚
トイレ完備で快適な作業環境が整っています。
コストを抑えて広い拠点をお探しの企業様に最適
メリット
まとまった広さと賃料
約67.4坪という広さを確保しながら賃料45万円(坪単価約6,670円)に抑えられており、ランニングコストを抑えたい企業様にとって良好なコストパフォーマンスを発揮します。
駐車場の確保
敷地内に月額8,000円で数台分の駐車場が確保できるため、周辺で別途月極駐車場を探す手間が省け、営業車や従業員の通勤車両の置き場所に困りません。
設備
トイレが完備されているため、長時間の作業や事務作業を行う際にも快適な環境が整っています。
デメリット
2階〜3階部分という動線
1階部分ではなく2階〜3階部分の利用となるため、荷物の上げ下ろしにエレベーターやリフトなどの設備があるか、手作業になるかなど、搬入出の動線を事前にしっかり確認する必要があります。
築年数による老朽化
1987年(昭和62年)2月築と築年数が経過しているため、建物の老朽化や設備の経年劣化について内見時の詳細なチェックが必要です。
駅からのアクセス
最寄り駅の「鳩ヶ谷」駅から徒歩19分とやや距離があるため、公共交通機関を利用する従業員の通勤には配慮が必要となります。