| 物件名 | 貸倉庫・軽作業所 埼玉県川口市飯塚3丁目10−39 | ||
|---|---|---|---|
| 物件種別 | 倉庫 | 業種 | |
| 所在地 | 埼玉県川口市飯塚3丁目10−3935.8001, 139.7118 | ||
| 交通 | |||
| 交通 | JR京浜東北線「川口」駅 徒歩10分 | ||
| 賃料 | 250,000円 | 共益費・管理費 | |
| 敷金・保証金 | 2ヶ月 | 敷金・保証金償却 | |
| 礼金 | 1ヶ月 | 更新料 | 新賃料1ヶ月分 |
| 土地面積 | 建物床面積 | 97.71m² | |
| 坪単価 | 8,460円 | ||
| 入居日 | 即時 | ||
| 契約期間 | 3年 | 現況 | 空家 |
| 賃貸借区分 | 定期賃貸借 | 取引態様 | |
| 建物構造 | 鉄骨造地上1階 | 用途地域 | 準工業地域 |
| 建ぺい率 | 容積率 | ||
| 駐車場区分 | 駐車場料金 | ||
| 接道状況 | 一方公道 | ||
| 築年月 | 1979年5月 | ||
| こだわり条件 | 商品保管倉庫 , 事務所がある | ||
| 備考 | |||
| 最終更新日 | 2026年05月05日 | ||











































【川口駅10分・29坪】
事務所&休憩室完備!機動力と居住性を兼ね備えた実戦派の貸倉庫・作業所
【埼玉県川口市・貸倉庫作業所】250,000円(非課税)!機能美溢れる駅近拠点🏠
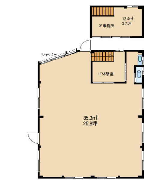
川口市飯塚3丁目エリア。JR京浜東北線「川口」駅より徒歩10分。シャッター完備の1階ワンフロア物件です!
専有面積は約29.55坪。室内に約3.7坪の2階事務所と1階休憩室を備えており、現場と事務を効率的に集約可能です🚗
準工業地域内のため軽作業所としての利用も相談でき、上下水道・都市ガス完備で即戦力の操業環境が整っています。
即日使用可能。川口エリアで、作業効率とスタッフの環境を両立させたい事業者様に推奨いたします。
メリット
事務所・休憩室の内包による高い利便性
独立した事務所空間があるため、現場と切り離した正確な事務処理が可能です。休憩スペースの存在はスタッフの定着率や生産性向上にも寄与します。
駅近かつ車両相談可能な希少立地
川口駅徒歩10分という好立地でありながら、駐車や通路利用についての相談が可能な点は、機動力を重視するビジネスにとって大きな優位性となります。
デメリット
操業時間の規定
営業時間が午前8時〜午後7時までと設定されているため、シフト制や夜間作業を伴う業態の場合は、運用の調整が必要となる点に注意が必要です。
建物の経年状態の把握
1979年築の建物であるため、現況のインフラ状態や室内コンディションを入念に確認し、自社の操業要件を満たしているか事前の精査を推奨します。