| 物件名 | 貸工場 千葉県富津市川名1481-2 | ||
|---|---|---|---|
| 物件種別 | 工場 | 業種 | |
| 所在地 | 千葉県富津市川名1481-2 | ||
| 交通 | 館山自動車道「富津中央」IC | ||
| 交通 | JR内房線「大貫」駅 徒歩60分 | ||
| 賃料 | 726,000円 | 共益費・管理費 | |
| 敷金・保証金 | 3ヶ月 | 敷金・保証金償却 | |
| 礼金 | 1ヶ月 | 更新料 | 新賃料1ヶ月分 |
| 土地面積 | 建物床面積 | 663.96m² | |
| 坪単価 | 3,373円 | ||
| 入居日 | 相談 | ||
| 契約期間 | 3年 | 現況 | 空家 |
| 賃貸借区分 | 普通賃貸借 | 取引態様 | |
| 建物構造 | 鉄骨造地上1階 | 用途地域 | 市街化調整区域 |
| 建ぺい率 | 容積率 | ||
| 駐車場区分 | 駐車場料金 | ||
| 接道状況 | 一方公道 | ||
| 築年月 | 1992年1月 | ||
| こだわり条件 | 食品工場向け物件(セントラルキッチン) , 2階建て以上 | ||
| 備考 | |||
| 最終更新日 | 2026年05月05日 | ||






































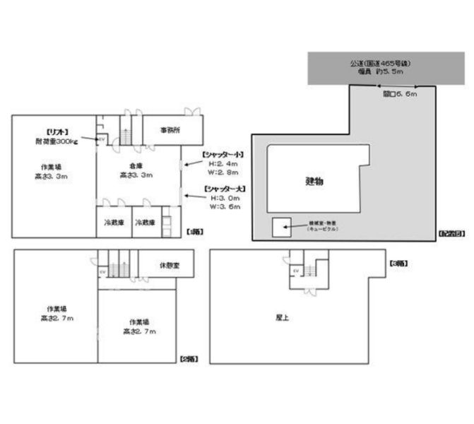
【富津・215坪】
元海苔加工工場
リフト・冷蔵庫・キュービクル完備の3階建一棟貸工場
【千葉県富津市・貸工場】726,000円(税込)!元加工工場の設備を活かせる実戦的一棟拠点🏠
富津市川名エリア。国道465号線に直接面した、車両アクセスに優れた鉄骨造3階建ての貸工場・倉庫です!
合計床面積は約215.21坪。最大の特徴は、荷物用リフトや冷蔵庫、キュービクルといった食品加工や作業に欠かせない重設備が完備されている点です🚗
敷地面積は約279坪と広く、大型車両の進入はもちろん、多数の駐車スペースも確保。事務所や休憩室も備わっており、入居後すぐに多機能な拠点として稼働可能です。
現在空室につき相談可能。富津エリアで、設備力と広大な作業空間を求める事業者様に推奨いたします。
メリット
即戦力となる充実の残置設備
リフトや冷蔵庫、キュービクルが整っており、多額の初期設備投資を抑えながら、効率的な製造・保管オペレーションを即座に開始できる点が最大の強みです。
国道に面した卓越した車両機動力
幅員5.5mの国道に面した広い敷地は、大型トラックの運用を容易にします。多数の駐車スペースにより、配送スタッフの確保や車両管理も円滑に行えます。
デメリット
通勤アクセスの考慮
駅から距離がある立地のため、スタッフの通勤手段として自社車両やマイカー通勤の推奨など、車両活用を前提とした採用・運用計画が重要となります。
設備の維持管理体制の確認
現況有姿での引き渡しとなるため、残置されている各設備の動作状況やメンテナンス履歴については、内覧時に専門的な視点でのチェックを推奨します。