| 物件名 | 塚越倉庫 神奈川県横須賀市根岸町4丁目12 | ||
|---|---|---|---|
| 物件種別 | 貸地 | 業種 | |
| 所在地 | 神奈川県横須賀市根岸町4丁目12 | ||
| 交通 | 横浜横須賀道路 「佐原」IC | ||
| 交通 | 京急久里浜線「北久里浜」駅 徒歩13分 | ||
| 賃料 | 1,131,900円(税込) | 共益費・管理費 | |
| 敷金・保証金 | 6ヶ月 | 敷金・保証金償却 | |
| 礼金 | 1ヶ月 | 更新料 | |
| 土地面積 | 建物床面積 | 486m² | |
| 坪単価 | 7,700円 | ||
| 入居日 | 相談 | ||
| 契約期間 | 現況 | ||
| 賃貸借区分 | 取引態様 | 仲介 | |
| 建物構造 | 地上2階 | 用途地域 | 第一種中高層住居専用地域 |
| 建ぺい率 | 容積率 | ||
| 駐車場区分 | 敷地内 | 駐車場料金 | |
| 接道状況 | 一方公道 | ||
| 築年月 | 1987年11月 | ||
| こだわり条件 | 2階建て以上 | ||
| 備考 | |||
| 最終更新日 | 2026年05月05日 | ||


































【北久里浜駅・徒歩圏】
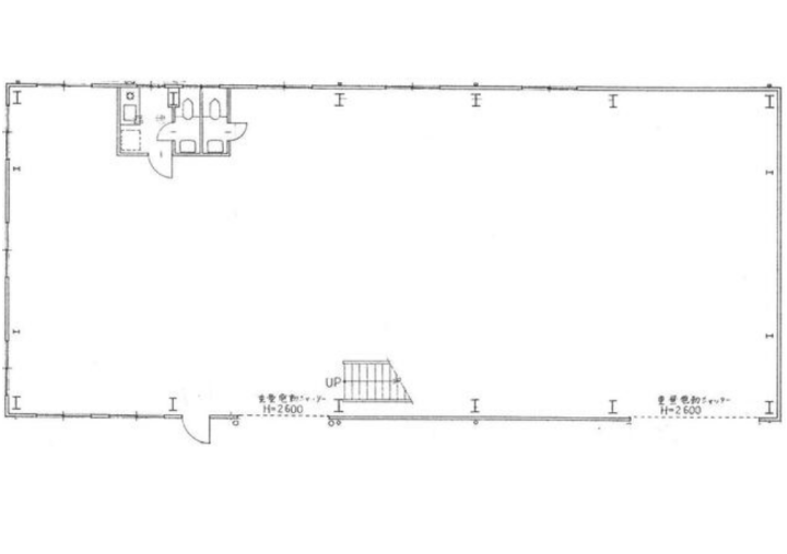
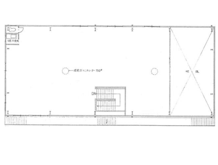
電動シャッター2基・駐車場有!147坪の鉄骨2階建て倉庫
【神奈川県横須賀市・貸倉庫】1,131,900円(税込)!電動シャッターと充実の水回りを備えた即戦力拠点🏠
横須賀市根岸町エリア。京急久里浜線「北久里浜」駅より徒歩13分。配送効率とスタッフの就業環境を高い次元で両立させた、鉄骨造2階建ての一括貸し倉庫です!
延床面積は約486.00m²(約147.01坪)。最大の特徴は、2箇所の電動シャッターと、各階トイレ・ミニキッチン完備という利便性の高さ。配送デポや事務所併設の作業拠点として、高いパフォーマンスを発揮します🚗
現在空家につき即時入居可能。駐車場も完備されており、横須賀エリアで独立性の高い自社拠点をスピーディーに構築したい事業者様に推奨いたします。
メリット
入居後すぐに稼働できる充実の設備力
電動シャッターや照明一式、ミニキッチンなどが揃っており、設備導入の手間とコストを抑えられます。一棟貸しのため、セキュリティや独自の運用管理も容易です。
通勤・車両アクセスのバランスが良好
駅から徒歩圏内のためスタッフ採用に有利で、かつ駐車場完備により車両による機動力も確保。配送拠点として非常に使い勝手の良い環境が整っています。
デメリット
付帯設備のメンテナンス区分
主要な設備が残置物扱いとなっているため、日々の保守点検や故障時の修理対応については、事前に契約条件を確認し予算化しておくことが望ましいです。
用途地域に伴う操業上の注意
第一種中高層住居専用地域に位置するため、周辺住環境への配慮が必要となる場合があります。業種や稼働時間帯について、貸主側との事前協議を推奨します。