| 物件名 | 加須市串作貸倉庫 埼玉県加須市串作 | ||
|---|---|---|---|
| 物件種別 | 倉庫 | 業種 | |
| 所在地 | 埼玉県加須市串作 | ||
| 交通 | 東北自動車道 IC | ||
| 交通 | 東武伊勢崎線「南羽生」駅 徒歩43分 | ||
| 賃料 | (税込) | 共益費・管理費 | |
| 敷金・保証金 | 敷金・保証金償却 | ||
| 礼金 | 更新料 | ||
| 土地面積 | 建物床面積 | 427.03m² | |
| 坪単価 | |||
| 入居日 | |||
| 契約期間 | 現況 | 居住中 | |
| 賃貸借区分 | 取引態様 | 仲介 | |
| 建物構造 | 鉄骨造地上1階 | 用途地域 | 市街化調整区域 |
| 建ぺい率 | 容積率 | ||
| 駐車場区分 | 敷地内 | 駐車場料金 | |
| 接道状況 | 角地公道南 | ||
| 築年月 | 1967年4月 | ||
| こだわり条件 | |||
| 備考 | |||
| 最終更新日 | 2025年09月20日 | ||










































担当者からのコメント
契約済み
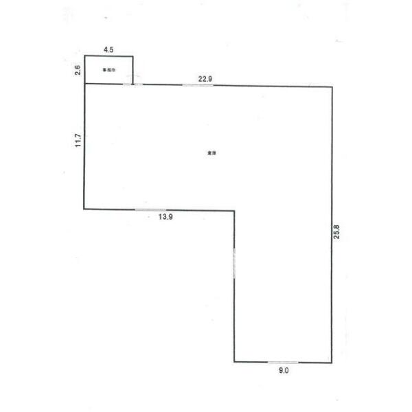
加須市串作 平屋建て倉庫 129坪
◇◆◇こんな物件です◇◆◇
使い勝手の良い平屋建て 129坪
倉庫125坪 事務所4坪
大型車搬入可能
天井高最大5.5m
事務所付き トイレあり
市街化調整区域
◇◆◇アクセス 周辺環境◇◆◇
•東北自動車道『羽生』ICより約8.3km
•県道128号線(熊谷羽生線)沿い
•県道32号線(鴻巣羽生線)からも至近
•車での利便性に優れた立地
•ロードサイド物件
•東武伊勢崎線「南羽生駅」 徒歩43分
お問い合わせは下記の連絡先まで
加須市の貸し倉庫・貸し工場・貸し店舗のことなら、
「貸倉庫東京R」にお問い合わせください
新着物件がでたら、連絡が欲しい方は、下記の連絡先まで
048-423-5568
info@souko.tokyo
