| 物件名 | 貸し倉庫 東京都文京区小石川2丁目12-8 | ||
|---|---|---|---|
| 物件種別 | 倉庫 | 業種 | |
| 所在地 | 東京都文京区小石川2丁目12-8 | ||
| 交通 | 首都高速 飯田橋IC | ||
| 交通 | 日暮里・舎人ライナー「舎人」駅 徒歩15分 | ||
| 賃料 | 1,210,000円(税込) | 共益費・管理費 | |
| 敷金・保証金 | 4ヶ月 | 敷金・保証金償却 | 1ヶ月 |
| 礼金 | 1ヶ月 | 更新料 | 新賃料1ヶ月分 |
| 土地面積 | 建物床面積 | 341.16m² | |
| 坪単価 | |||
| 入居日 | 時期指定【2026年6月1日】 | ||
| 契約期間 | 3年 | 現況 | 居住中 |
| 賃貸借区分 | 普通賃貸借 | 取引態様 | 仲介 |
| 建物構造 | 鉄骨造地上3階 | 用途地域 | 第一種中高層住居専用地域 |
| 建ぺい率 | 容積率 | ||
| 駐車場区分 | 駐車場料金 | ||
| 接道状況 | 角地公道 | ||
| 築年月 | 1988年12月 | ||
| こだわり条件 | キュービクルがある , 2階建て以上 , 高速インター近く , 高速ICから5キロ以内 | ||
| 備考 | |||
| 最終更新日 | 2026年05月05日 | ||



































担当者からのコメント
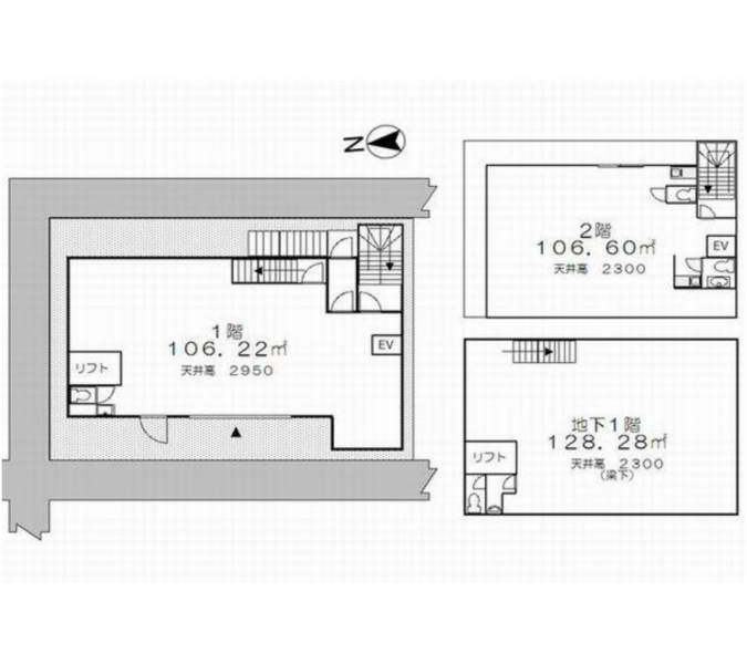
文京区小石川2丁目 倉庫・作業所 103坪(地下あり)
1階 106.22m² (約32.13坪)
2階 106.66m² (約32.26坪)
地下1階 128.28m² (約38.80坪)
合 計 341.16m²(約103.20坪)※登記簿
★三方道路に面す好立地!
★キュービクル・リフトあり(保守契約費用賃料に含む)
★各階トイレ・空調あり
★春日通り至近
★首都高速「飯田橋IC」至近
★1988年(昭和63年)12月
★東京メトロ丸の内線・南北線 「後楽園」駅 徒歩8分
★都営大江戸線「春日」駅 徒歩7分
■アクセス■
★首都高速『飯田橋IC 』
■用途地域■
第一種中高層住居専用地域
お問い合わせは下記の連絡先まで
048-423-5568
info@souko.tokyo
