| 物件名 | テント倉庫 埼玉県加須市大桑2丁目13 | ||
|---|---|---|---|
| 物件種別 | 倉庫 | 業種 | |
| 所在地 | 埼玉県加須市大桑2丁目13 | ||
| 交通 | 東北自動車道 加須IC | ||
| 交通 | 東武伊勢崎線「花崎」駅 徒歩29分 | ||
| 賃料 | 440,000円(税込) | 共益費・管理費 | |
| 敷金・保証金 | 3ヶ月 | 敷金・保証金償却 | 1ヶ月分 |
| 礼金 | 1ヶ月 | 更新料 | 新賃料1ヶ月分 |
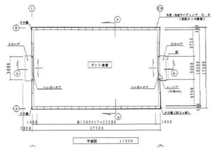
| 土地面積 | 建物床面積 | 485.29m² | |
| 坪単価 | |||
| 入居日 | |||
| 契約期間 | 3年 | 現況 | 空家 |
| 賃貸借区分 | 定期賃貸借 | 取引態様 | 仲介 |
| 建物構造 | 鉄骨造地上1階 | 用途地域 | 市街化調整区域 |
| 建ぺい率 | 容積率 | ||
| 駐車場区分 | 敷地内 | 駐車場料金 | |
| 接道状況 | 一方公道 | ||
| 築年月 | 1997年9月 | ||
| こだわり条件 | 平屋建て | ||
| 備考 | |||
| 最終更新日 | 2025年11月25日 | ||











































担当者からのコメント
加須市大桑 2 丁目 テント倉庫 146坪
●外にトイレ・水栓有り
●加須インター至近
■アクセス■
★東北道『加須IC 』
■用途地域■
市街化調整区域
加須の用途地域の確認はこちらから
・加須市 都市計画図