| 物件名 | 東川口月岡ストレージ 埼玉県川口市東川口2丁目7-9 | ||
|---|---|---|---|
| 物件種別 | 事務所 | 業種 | |
| 所在地 | 埼玉県川口市東川口2丁目 | ||
| 交通 | 東北自動車道 浦和IC | ||
| 交通 | JR武蔵野線「東川口」駅 徒歩6分 | ||
| 賃料 | 330,000円 | 共益費・管理費 | |
| 敷金・保証金 | 1ヶ月 | 敷金・保証金償却 | |
| 礼金 | 2ヶ月 | 更新料 | 新賃料1.1ヶ月分 |
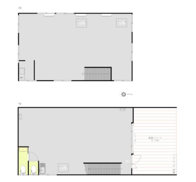
| 土地面積 | 建物床面積 | 138.84m² | |
| 坪単価 | |||
| 入居日 | |||
| 契約期間 | 3年 | 現況 | 空家 |
| 賃貸借区分 | 普通賃貸借 | 取引態様 | 仲介 |
| 建物構造 | 鉄骨造地上2階 | 用途地域 | 第二種中高層住居専用地域 |
| 建ぺい率 | 容積率 | ||
| 駐車場区分 | 駐車場料金 | ||
| 接道状況 | 一方公道 | ||
| 築年月 | 1993年1月 | ||
| こだわり条件 | 2階建て以上 | ||
| 備考 | |||
| 最終更新日 | 2026年05月05日 | ||








































担当者からのコメント
川口市東川口2丁目 2階建て倉庫 事務所 42坪
1階は倉庫 2階は事務所
◎国道122号から近く
◎東京外環自動車道「川口東IC」
◎東北自動車道「浦和IC」
◎事務所や倉庫としての利用におすすめです
◎敷地内に駐車スペースがあります。
(※飲食店は不可)。
■アクセス■
東北自動車道「浦和IC」から約3.5km
■用途地域■
第2種中高層住居専用地域
川口市の用途地域の確認はこちらから
・川口市 都市計画情報マップ