| 物件名 | 契約済み 野川和田倉庫 神奈川県川崎市高津区東野川2丁目25-4 | ||
|---|---|---|---|
| 物件種別 | 倉庫 | 業種 | |
| 所在地 | 神奈川県川崎市高津区東野川2丁目 | ||
| 交通 | 第三京浜道路 京浜川崎IC | ||
| 交通 | 東急田園都市線「鷺沼」駅 バス16分 停歩2分 | ||
| 賃料 | (税込) | 共益費・管理費 | |
| 敷金・保証金 | 3ヶ月 | 敷金・保証金償却 | |
| 礼金 | 2ヶ月 | 更新料 | |
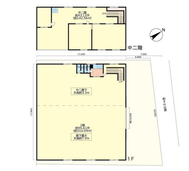
| 土地面積 | 建物床面積 | 316.09m² | |
| 坪単価 | 9,894円 | ||
| 入居日 | |||
| 契約期間 | 3年 | 現況 | 空家 |
| 賃貸借区分 | 定期賃貸借 | 取引態様 | |
| 建物構造 | 鉄骨造地上1階 | 用途地域 | |
| 建ぺい率 | 容積率 | ||
| 駐車場区分 | 駐車場料金 | ||
| 接道状況 | 一方 | ||
| 築年月 | 1970年3月 | ||
| こだわり条件 | |||
| 備考 | |||
| 最終更新日 | 2026年02月24日 | ||



































担当者からのコメント
契約済み
川崎市高津区東野川2丁目 平屋建て倉庫 95坪
中2階あり 43坪
天井高 最大7.9m
前面道路は北側公道、幅員4.0m・接道間口20.0m
東急田園都市線「鷺沼」駅よりバスアクセス
■アクセス■
第三京浜道路「都筑」IC
■用途地域■
第一種住居地域
お問い合わせは下記の連絡先まで
048-423-5568
info@souko.tokyo
