| 物件名 | 店舗戸建 埼玉県志木市柏町6丁目29-57 | ||
|---|---|---|---|
| 物件種別 | 店舗 | 業種 | |
| 所在地 | 埼玉県志木市柏町6丁目29-57 | ||
| 交通 | 外環自動車道 和光北IC | ||
| 交通 | 東武東上線「柳瀬川」駅 徒歩2分 | ||
| 賃料 | 638,000円 | 共益費・管理費 | |
| 敷金・保証金 | 2ヶ月 | 敷金・保証金償却 | |
| 礼金 | 1ヶ月 | 更新料 | 新賃料1ヶ月分 |
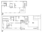
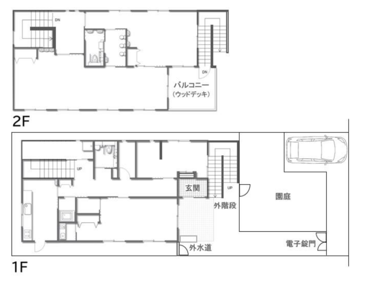
| 土地面積 | 234.32m² | 建物床面積 | 190.86m² |
| 坪単価 | |||
| 入居日 | 相談【2026年7月1日】 | ||
| 契約期間 | 現況 | 空家 | |
| 賃貸借区分 | 普通賃貸借 | 取引態様 | 仲介 |
| 建物構造 | 木造地上2階 | 用途地域 | |
| 建ぺい率 | 容積率 | ||
| 駐車場区分 | 敷地内 | 駐車場料金 | |
| 接道状況 | 一方公道 | ||
| 築年月 | 2016年3月 | ||
| こだわり条件 | 事務所がある | ||
| 備考 | |||
| 最終更新日 | 2026年05月05日 | ||

































担当者からのコメント
【柳瀬川駅徒歩2分】
園庭付き!元保育園の築浅一棟貸しテナント(約57坪)
・現在は保育園として利用中(2026年6月末退去予定)
・同業種や福祉施設などの居抜き・改装拠点として非常に魅力的
・専用の「園庭」と1台分の駐車スペースが完備されています
・2016年(平成28年)3月築と比較的築浅であり
・前面道路は北東側13.5mの公道で、送迎車両などの一時停車にも配慮しやすい環境です
メリット
希少な現況(元保育園): 保育園やデイサービス等の開業において最もハードルとなる「用途・設備要件」をすでにクリアしている可能性が高く、初期投資の大幅な削減とスピーディな開業が可能です。
立地とアクセス: 駅から徒歩2分という好立地に加え、北東側13.5mの広い公道に面しているため、利用者(保護者など)の送迎が非常にしやすい環境です。
園庭の存在: 敷地内に園庭スペースがあることは、児童福祉施設等としての認可基準を満たしやすく、施設としての付加価値(他園との差別化)に直結します。
デメリット
入居時期: 現テナントの退去が「2026年6月末日予定」となっているため、今すぐの入居・開業を希望する事業者様のスケジュールには合いません。
内装の引き継ぎ(残置物): 現テナント退去時の原状回復の度合い(スケルトン戻しなのか、居抜きで引き継げるのか)によって、内装工事費が大きく変動するため事前の詳細確認が必須です。
駐車場: 敷地内の駐車スペースが1台分のみとなっているため、複数の従業員が車通勤をする場合や、送迎車を複数台所有する場合は、別途近隣で月極駐車場を借りる必要があります。
お問い合わせは下記の連絡先まで
048-423-5568
info@souko.tokyo
