| 物件名 | Mベース 埼玉県朝霞市岡1丁目11−19 | ||
|---|---|---|---|
| 物件種別 | 倉庫 | 業種 | |
| 所在地 | 埼玉県朝霞市岡1丁目11−19 | ||
| 交通 | 外環自動車道 和光北IC | ||
| 交通 | 東武東上線「朝霞」駅 徒歩15分 | ||
| 賃料 | 880,000円 | 共益費・管理費 | 22,000円 |
| 敷金・保証金 | 5ヶ月 | 敷金・保証金償却 | |
| 礼金 | 1ヶ月 | 更新料 | |
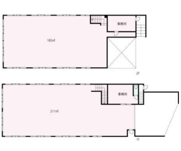
| 土地面積 | 建物床面積 | 394m² | |
| 坪単価 | 7,383円 | ||
| 入居日 | 相談 | ||
| 契約期間 | 3年 | 現況 | 空家 |
| 賃貸借区分 | 普通賃貸借 | 取引態様 | 仲介 |
| 建物構造 | 鉄骨造地上3階 | 用途地域 | |
| 建ぺい率 | 容積率 | ||
| 駐車場区分 | 敷地内 | 駐車場料金 | |
| 接道状況 | 一方公道 | ||
| 築年月 | 1979年12月 | ||
| こだわり条件 | 2階建て以上 | ||
| 備考 | |||
| 最終更新日 | 2026年05月05日 | ||





































【朝霞市・約119.1坪】
朝霞駅徒歩15分!業種相談可能な1・2階部分の大型貸倉庫
【埼玉県朝霞市・貸倉庫】88万円!通勤に便利な駅徒歩圏内🏠
朝霞市岡1丁目エリア。東武東上線「朝霞」駅徒歩15分。
建物約119.1坪。頑丈なRC造の1階〜2階部分を利用できる大型物件です!
「業種相談可能」で幅広い事業用途に柔軟に対応してもらえます🏢
契約期間は3年で更新料が「なし」のため、中長期での利用にも安心。
通勤アクセスと広さを両立させたい企業様に最適
メリット
駅徒歩圏内の好立地
朝霞駅から徒歩15分という立地は、倉庫物件としてはアクセスが良く、人材確保の面でも有利に働きます。
業種相談の柔軟性
業種相談が可能とされているため、一般的な倉庫用途だけでなく、軽作業や加工を伴うような独自の用途でも入居の可能性が広がります。
更新料なしで長く使いやすい
契約期間は3年ですが、更新料が「なし」に設定されているため、中長期でのランニングコストを抑えて事業計画を立てやすい点が大きな魅力です。
デメリット
駐車場なし
敷地内に駐車場が「なし」となっているため、営業車やトラックの運用、従業員の車通勤を想定している場合は、近隣で別途月極駐車場を確保する必要があります。
初期費用の重さ
賃料88万円に対して敷金が5ヶ月分(440万円)設定されており、さらに保証会社への初回加入料として月額賃料の100%が必要となるため、契約時には多額の初期費用(現金の持ち出し)が必要となります。
築年数と上下階の動線
1979年(昭和54年)12月築と築45年以上が経過していることに加え、1階と2階の複数階を利用するため、荷物の搬出入手段(リフトやエレベーターの有無)や設備の老朽化具合について内見時の確認が必須です。