| 物件名 | 埼玉第15倉庫 埼玉県川口市差間3丁目11-28 | ||
|---|---|---|---|
| 物件種別 | 倉庫 | 業種 | |
| 所在地 | 埼玉県川口市差間3丁目11-28 | ||
| 交通 | 東北自動車道 浦和IC | ||
| 交通 | JR武蔵野線「東川口」駅 徒歩17分 | ||
| 賃料 | 990,000円(税込) | 共益費・管理費 | |
| 敷金・保証金 | 4ヶ月 | 敷金・保証金償却 | 1ヶ月 |
| 礼金 | 1ヶ月 | 更新料 | 新賃料1ヶ月分 |
| 土地面積 | 853.22m² | 建物床面積 | 786m² |
| 坪単価 | 4,163円 | ||
| 入居日 | 時期指定【2026年5月1日】 | ||
| 契約期間 | 3年 | 現況 | 居住中 |
| 賃貸借区分 | 普通賃貸借 | 取引態様 | 仲介 |
| 建物構造 | 鉄骨造地上1階 | 用途地域 | 第二種中高層住居専用地域 |
| 建ぺい率 | 容積率 | ||
| 駐車場区分 | 駐車場料金 | ||
| 接道状況 | 一方公道6m | ||
| 築年月 | 1991年1月 | ||
| こだわり条件 | 商品保管倉庫 , 事務所がある , 平屋建て | ||
| 備考 | |||
| 最終更新日 | 2026年05月05日 | ||











































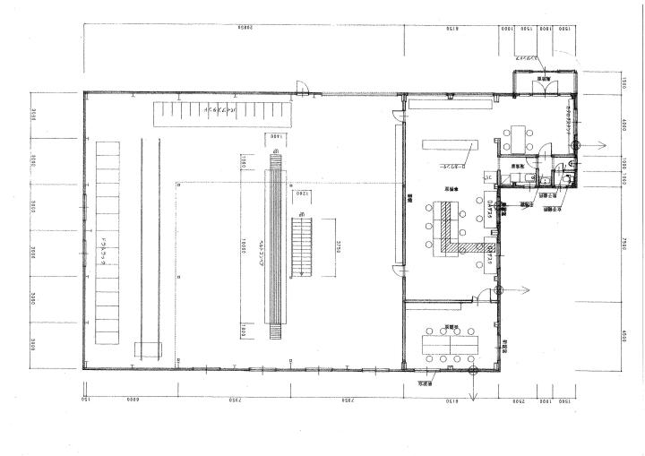
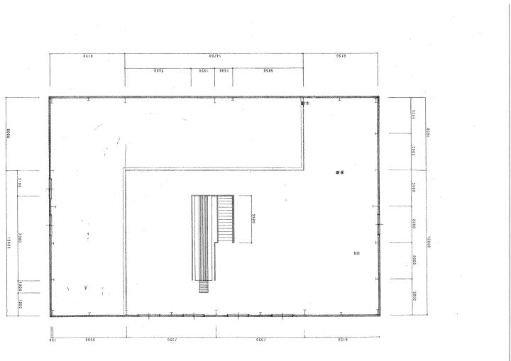
【川口市差間・約237.7坪】
最高軒高8.5m!事務所・中2階付きの平屋貸倉庫
【埼玉県川口市・貸倉庫】99万円!収納力と機能性に優れた大型物件🏠
川口市差間3丁目エリア。東北自動車道「浦和IC」から約3.2km。
建物約237.7坪。軒高6.9m、最高部8.5mと高く空間を立体的に使えます!
倉庫1階に加え、便利な中2階スペースと事務所スペースを完備🚚
車寄せや荷積スペースもあり、搬出入作業もスムーズ。
本格的な広域物流拠点をお探しの企業様に最適
メリット
圧倒的な天井高と空間利用
軒高6.9m、最高部8.5mという高さは、ラックを組んでの高積みや大型機械の搬入など、空間を最大限に有効活用でき、作業効率と保管効率を飛躍的に高めます。
機能的な間取り(中2階・事務所)
約86.5坪の中2階スペースと約42.3坪の事務所が備わっているため、検品や梱包などの軽作業エリア、事務管理エリアを1階のメイン保管スペースから分けて効率的に運用できます。
浦和IC至近の広域アクセス
東北自動車道「浦和IC」まで約3.2kmという距離にあり、都心部から北関東方面まで、長距離輸送のアクセス拠点として強力なメリットとなります。
デメリット
用途地域による操業制限
「第二種中高層住居専用地域」に位置しているため、騒音や振動、臭気を伴うような作業、あるいは深夜・早朝の激しいトラックの出入りなどには厳しい制限がかかる可能性があります。周辺住民への配慮が必要です。