| 物件名 | 営業所・倉庫 東京都小平市小川東町4丁目6-7 | ||
|---|---|---|---|
| 物件種別 | 倉庫 | 業種 | |
| 所在地 | 東京都小金井市小川東町4丁目6-7 | ||
| 交通 | |||
| 交通 | 西武拝島線「萩山」駅 徒歩8分 | ||
| 賃料 | 825,000円(税込) | 共益費・管理費 | |
| 敷金・保証金 | 6ヶ月 | 敷金・保証金償却 | |
| 礼金 | 1.1ヶ月 | 更新料 | |
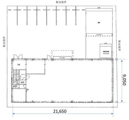
| 土地面積 | 495m² | 建物床面積 | 442.38m² |
| 坪単価 | 6,076円 | ||
| 入居日 | 相談 | ||
| 契約期間 | 現況 | 空家 | |
| 賃貸借区分 | 普通賃貸借 | 取引態様 | 仲介 |
| 建物構造 | 鉄骨造地上2階 | 用途地域 | 第一種中高層住居専用地域 |
| 建ぺい率 | 容積率 | ||
| 駐車場区分 | 敷地内 | 駐車場料金 | |
| 接道状況 | 一方公道 | ||
| 築年月 | 1992年4月 | ||
| こだわり条件 | 営業所 , 商品保管倉庫 , 事務所がある , 2階建て以上 | ||
| 備考 | |||
| 最終更新日 | 2026年05月05日 | ||





































【小平市・約135.7坪】
駐車場8区画!エアコン・LED更新済の2階建て貸倉庫・営業所
【東京都小平市・貸倉庫/事務所】82.5万円!設備が整った機能的な拠点🏠
小平市小川東町エリア。「青梅街道」駅徒歩7分など3駅利用可能。
建物約135.7坪。1階が倉庫、2階が事務所の使いやすい鉄骨造2階建て物件です!
敷地内には駐車場が8区画確保されており、多数の営業車の運用もスムーズ🚗
2階はOAフロア仕様で、エアコンやLED照明が更新済みのためすぐに快適に稼働できます。
通勤利便性と設備の良さを重視する企業様に最適です
メリット
設備の充実とコスト削減
2階事務所はOAフロア仕様で、エアコンやLED照明が更新済みのため、入居時の設備投資費用を抑え、すぐに快適なオフィスとして稼働できます。
3駅3路線の好アクセス
青梅街道駅徒歩7分、萩山駅徒歩8分、新小平駅徒歩13分と電車通勤の利便性が非常に高く、人材確保において大きなアドバンテージとなります。
機能的な間取りと豊富な駐車場
1階倉庫・2階事務所と用途が明確に分かれており、西側11mの公道に面した敷地内には駐車場が8区画確保されているため、実用性に優れています。
デメリット
用途地域の制限
「第1種中高層住居専用地域」に位置しているため、騒音・振動・臭気を伴う工場用途や、深夜早朝の頻繁なトラックの出入りなどには厳しい制限がかかる可能性があります。
キュービクルなし
「キュービクルなし」と明記されているため、製造業などで高圧電力を必要とする大型機械の導入には不向きであり、電気容量の確認が必須です。