| 物件名 | 清水倉庫 東京都足立区扇2丁目20 | ||
|---|---|---|---|
| 物件種別 | 倉庫 | 業種 | |
| 所在地 | 東京都足立区扇2丁目20 | ||
| 交通 | 首都高速 扇大橋IC | ||
| 交通 | 日暮里・舎人ライナー「扇大橋」駅 徒歩7分 | ||
| 賃料 | 495,000円(税込) | 共益費・管理費 | |
| 敷金・保証金 | 2ヶ月 | 敷金・保証金償却 | |
| 礼金 | 2ヶ月 | 更新料 | |
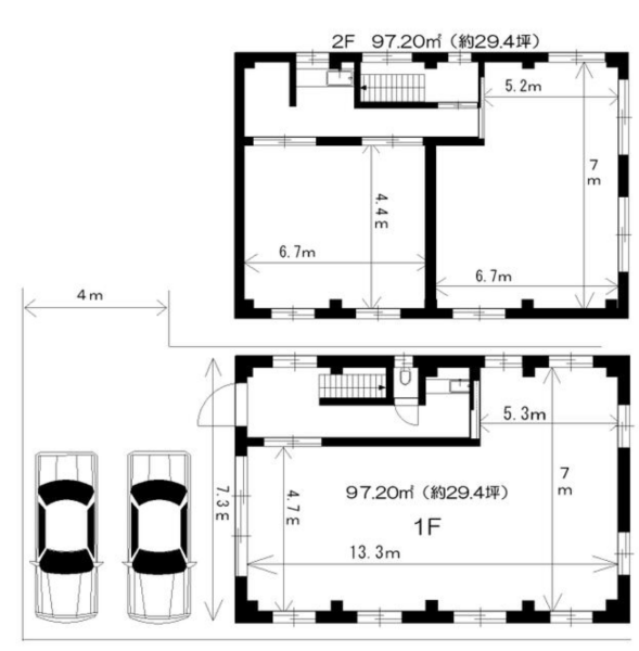
| 土地面積 | 建物床面積 | 194.4m² | |
| 坪単価 | 8,418円 | ||
| 入居日 | 時期指定【2026年4月1日】 | ||
| 契約期間 | 8年 | 現況 | 空家 |
| 賃貸借区分 | 定期賃貸借 | 取引態様 | 仲介 |
| 建物構造 | 鉄骨造地上2階 | 用途地域 | |
| 建ぺい率 | 容積率 | ||
| 駐車場区分 | 敷地内 | 駐車場料金 | |
| 接道状況 | 一方公道 | ||
| 築年月 | 1993年1月 | ||
| こだわり条件 | 商品保管倉庫 , 事務所がある , 2階建て以上 | ||
| 備考 | |||
| 最終更新日 | 2026年05月05日 | ||











































【足立区扇・約58.8坪】
扇大橋駅徒歩7分!駐車場3台無料の2階建て貸事務所・倉庫
【東京都足立区・貸事務所/倉庫】49.5万円!駐車場付きの機能的な独立拠点🏠
足立区扇2丁目エリア。日暮里・舎人ライナー「扇大橋」駅より徒歩7分。
建物約58.8坪。使い勝手の良い鉄骨造2階建ての物件です!
なんと駐車場3台分が賃料に含まれており、営業車の運用に大変便利🚗
契約は定期借家8年と長期に設定されているため、腰を据えて事業に集中できます。
駅近で長期的な自社拠点をお探しの企業様に最適な優良物件です
メリット
駐車場3台無料
駐車場3台分が賃料に含まれているのは、営業車や配送車両を複数台保有する企業にとって大幅なコストダウンに直結する大きなメリットです。
駅徒歩7分の好立地
「扇大橋」駅から徒歩7分と近く、従業員の通勤負担の軽減やパート・アルバイト等の人材採用の面で非常に有利に働きます。
デメリット
初期費用の重さ
賃料49.5万円に対し、敷金2ヶ月、礼金2ヶ月が必要で、さらに保証会社への初回保証料(総賃料の100%)が発生するため、契約時の初期費用(現金の持ち出し)が高額になります。
退去・再契約のリスク
定期借家契約のため、8年の期間満了時に貸主の意向で再契約ができない場合は、確実に退去・移転しなければならないリスクがあります。再契約の可能性については事前確認が必要です。