| 物件名 | 海老名41 神奈川県海老名市本郷2677-1 | ||
|---|---|---|---|
| 物件種別 | 倉庫 | 業種 | |
| 所在地 | 神奈川県海老名市本郷2677-1 | ||
| 交通 | 圏央道 「寒川北」IC | ||
| 交通 | JR相模線「門沢橋」駅 徒歩24分 | ||
| 賃料 | 990,000円(税込) | 共益費・管理費 | |
| 敷金・保証金 | 4ヶ月 | 敷金・保証金償却 | 1ヶ月分 |
| 礼金 | 1ヶ月 | 更新料 | なし |
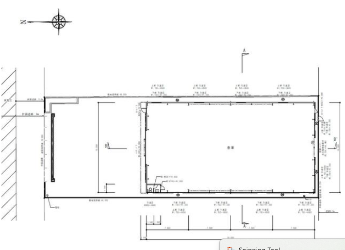
| 土地面積 | 887.58m² | 建物床面積 | 480m² |
| 坪単価 | 6,800円 | ||
| 入居日 | 時期指定【2026年5月1日】 | ||
| 契約期間 | 2年 | 現況 | 空家 |
| 賃貸借区分 | 定期賃貸借 | 取引態様 | 仲介 |
| 建物構造 | 鉄骨造地上1階 | 用途地域 | 工業地域 |
| 建ぺい率 | 容積率 | ||
| 駐車場区分 | 敷地内 | 駐車場料金 | |
| 接道状況 | 一方公道 | ||
| 築年月 | 2000年3月 | ||
| こだわり条件 | 商品保管倉庫 , 準工業地域 工業地域 , 平屋建て , 定期借家契約物件 , 高速インター近く , 高速ICから5キロ以内 | ||
| 備考 | |||
| 最終更新日 | 2026年04月07日 | ||






































【海老名・145坪】
工業地域・平屋一棟貸し!寒川北IC至近の戦略的物流倉庫
【神奈川県海老名市・貸倉庫】990,000円(税込)!工業地域の安定性と平屋一棟貸しの利便性を兼ね備えた、145坪の配送拠点🏠
海老名市本郷エリア。圏央道「寒川北」ICより約3.8km、工業地域内。車両機動力と荷役効率を高い次元で両立させた、鉄骨造平屋建ての一括貸し物件です!
延床面積は約480.00m²(約145.20坪)。最大の特徴は、寒川北IC至近の卓越したアクセス性能と、平屋構造ならではのスムーズな入出庫オペレーション、そして前面6m公道に面した良好な接道条件です🚗
2000年3月竣工、敷地約268坪。2026年5月1日より入居可能予定。海老名・寒川エリアで、広域配送のハブとなる自社専用の平屋倉庫を求める事業者様に推奨いたします。
メリット
物流の機動力を高める平屋×IC至近の立地
寒川北ICまで約3.8kmという距離は、圏央道・東名を利用した広域配送に最適。上下移動のない平屋構造は荷役時間を短縮し、配送効率を劇的に向上させます。
工業地域による長期安定的な操業環境
用途制限が少ない工業地域内に立地しているため、周囲の環境変化を気にせず腰を据えて事業運営が可能。268坪のゆとりある敷地で大型車両の運用もスムーズです。
デメリット
稼働開始時期に合わせた計画的検討
2026年5月の引渡予定となっているため、来春の事業計画に基づいた余裕のある移転スケジュールの策定が必要です。
定期借家契約の内容確認
2年間の定期借家契約(中途解約なし)という条件につき、事業の継続性や契約更新に関する条項について、事前に貸主側と詳細に調整することを推奨します。