| 物件名 | 宮原町2丁目貸事務所・倉庫 埼玉県さいたま市北区宮原町2丁目85−6 | ||
|---|---|---|---|
| 物件種別 | 倉庫 | 業種 | |
| 所在地 | 埼玉県さいたま市北区宮原町2丁目85−6 | ||
| 交通 | 首都高速 与野IC | ||
| 交通 | JR高崎線「宮原」駅 徒歩9分 | ||
| 賃料 | 4,950,000円 | 共益費・管理費 | 10,147円 |
| 敷金・保証金 | 6ヶ月 | 敷金・保証金償却 | |
| 礼金 | 1ヶ月 | 更新料 | |
| 土地面積 | 1,612.67m² | 建物床面積 | 2,195.25m² |
| 坪単価 | |||
| 入居日 | 時期指定【2026年10月1日】 | ||
| 契約期間 | 現況 | 居住中 | |
| 賃貸借区分 | 取引態様 | 仲介 | |
| 建物構造 | 鉄骨造地上2階 | 用途地域 | 第一種住居地域 |
| 建ぺい率 | 容積率 | ||
| 駐車場区分 | 敷地内 | 駐車場料金 | |
| 接道状況 | |||
| 築年月 | |||
| こだわり条件 | 営業所 , 事務所がある , 2階建て以上 | ||
| 備考 | |||
| 最終更新日 | 2026年05月25日 | ||










































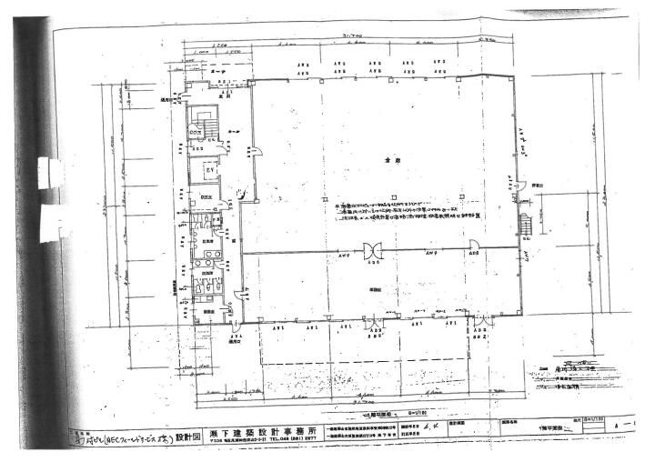
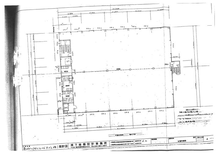
【さいたま市北区:宮原駅圏内の角地3階建一括貸し物件】
【さいたま市北区宮原町・貸事務所/倉庫】賃料4950000円(税込)!東南・北東角地で視認性・アクセス共に優れた一括貸し案件🏠
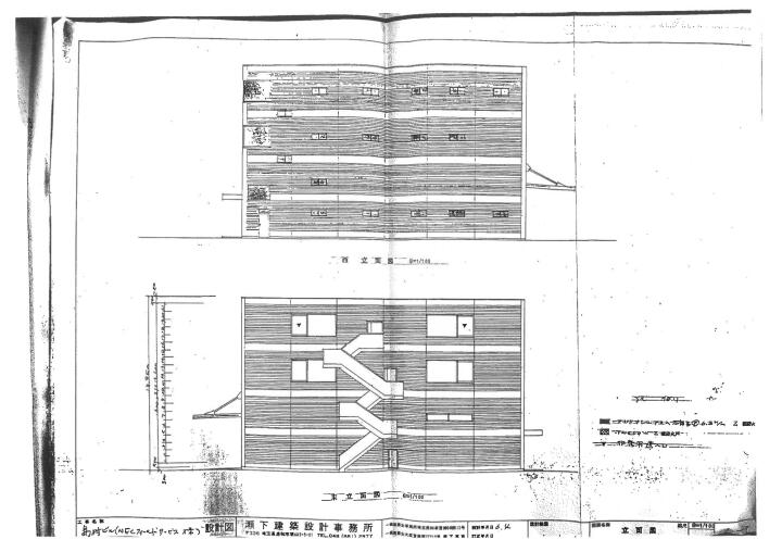
JR宮原駅より徒歩圏内、宮原駅前通線に面した好立地。鉄骨造3階建て、各階約720m²超のゆとりあるフロア構成が特徴です。
土地面積1612.67m²(約487.83坪)、延床面積は約2185m²。1階から3階まで均等なスペースを確保しており、大規模なオフィス兼配送拠点として機能します🚗
平成7年築、スケルトン渡し。第一種住居地域に位置し、高度地区15mの制限内。9月末退去予定につき、拠点統合や新規出店を計画中の事業者様に最適です。
p>メリット
視認性の高い角地立地と接道環境
東南・北東の両面が6m幅員の公道に接しており、車両の取り回しがしやすく、周辺への看板効果も非常に高い物件です。
レイアウト自由自在のスケルトン渡し
内装がスケルトン状態で引き渡されるため、業種に合わせた最適なオフィスデザインや、効率的な倉庫配置をゼロから構築可能です。
デメリット
北側進入の制限と車両動線
北側道路からの進入が制限されているため、配送車両のルート設定には注意が必要です。事前に周辺の交通規制を確認することをお勧めします。
入居時期の調整
現在入居中であり、引き渡しは9月末退去以降となります。余裕を持った移転スケジュールの策定が必要です。