| 物件名 | 倉見5・6・7号 貸倉庫 神奈川県高座郡寒川町倉見2000 | ||
|---|---|---|---|
| 物件種別 | 倉庫 | 業種 | |
| 所在地 | 神奈川県高座郡寒川町倉見2000 | ||
| 交通 | 圏央道 寒川北ICより1.7km | ||
| 交通 | JR相模線「倉見」駅 | ||
| 賃料 | 3,668,445円 | 共益費・管理費 | |
| 敷金・保証金 | 4ヶ月 | 敷金・保証金償却 | 契約時1ヶ月 |
| 礼金 | 1ヶ月 | 更新料 | |
| 土地面積 | 建物床面積 | 2,204.92m² | |
| 坪単価 | 5,500円 | ||
| 入居日 | 相談 | ||
| 契約期間 | 5年 | 現況 | 居住中 |
| 賃貸借区分 | 定期賃貸借 | 取引態様 | |
| 建物構造 | 鉄骨造地上1階 | 用途地域 | 第一種住居地域 |
| 建ぺい率 | 60% | 容積率 | 200% |
| 駐車場区分 | 駐車場料金 | ||
| 接道状況 | |||
| 築年月 | 1974年--月 | ||
| こだわり条件 | 商品保管倉庫 , 平屋建て , 500坪~ | ||
| 備考 | |||
| 最終更新日 | 2026年05月05日 | ||





































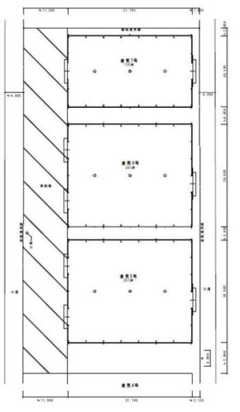
【寒川町倉見・666.99坪・寒川北IC至近の平屋大型貸倉庫】
圏央道「寒川北IC」より約1.7km。平屋3棟一括利用と広大な前面空地で物流動線を最適化🏠3棟を一体的に活用できる平屋構造は、大規模な在庫管理やスムーズな車両動線を求める事業者様に最適です。
・交通:JR相模線「倉見駅」より約1.6km、圏央道「寒川北IC」約1.7km
・構造:鉄骨造平屋建 3棟(5号・6号・7号)
・面積:建物 2,204.92m²(666.99坪)、地積 3,773.19m²(1,141.39坪)
・設備:シャッター(W4m×H4m)、天井高5.5m、広い荷捌き場、電気、水道
・用途地域:第一種住居地域
・築年月:1974年(昭和49年)
・引渡時期:相談
メリット
大型車両の離合もスムーズな広大な荷捌きスペース
敷地内に1,100坪超のゆとりある地積を確保しており、大型トラックの待機や複数台同時の荷役作業が可能。入出庫の回転率を大幅に向上させます。
平屋×天井高5.5mによる優れた空間効率
上下階の移動ロスがない平屋構造に加え、5.5mの天井高を活かした高層ラック等の設置が可能。坪数以上の保管能力を発揮し、坪単価を抑えた運用ができます。
デメリット
建物経年によるスペックの事前確認
1974年竣工の物件であるため、最新物件と比較して電気容量の増設可否や床面のフラット性、断熱性能について事業内容に照らした確認を推奨します。
第一種住居地域における周辺環境への配慮
住居地域に位置するため、深夜帯の荷役作業や車両の頻繁な出入りについては、近隣住民とのトラブルを避けるための運用ルールの策定が必要です。