| 物件名 | 貸店舗 埼玉県北本市荒井2丁目428-3 | ||
|---|---|---|---|
| 物件種別 | 店舗 | 業種 | |
| 所在地 | 埼玉県北本市荒井2丁目428-3 | ||
| 交通 | 圏央道 桶川北本IC | ||
| 交通 | JR高崎線「北本」駅 徒歩31分 | ||
| 賃料 | 550,000円(税込) | 共益費・管理費 | |
| 敷金・保証金 | 6ヶ月 | 敷金・保証金償却 | |
| 礼金 | 2ヶ月 | 更新料 | 新賃料1ヶ月分 |
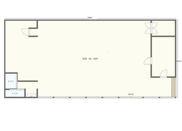
| 土地面積 | 1,764.56m² | 建物床面積 | 199.7m² |
| 坪単価 | |||
| 入居日 | 即時 | ||
| 契約期間 | 5年 | 現況 | 空家 |
| 賃貸借区分 | 定期賃貸借 | 取引態様 | 仲介 |
| 建物構造 | 軽量鉄骨地上1階 | 用途地域 | 市街化調整区域 |
| 建ぺい率 | 容積率 | ||
| 駐車場区分 | 駐車場料金 | ||
| 接道状況 | 一方公道北 | ||
| 築年月 | 2015年6月 | ||
| こだわり条件 | 事務所がある , 幹線道路・ロードサイド , コンビニ居抜き | ||
| 備考 | |||
| 最終更新日 | 2026年05月05日 | ||








































担当者からのコメント
北本市荒井2丁目 ロードサイド店舗
視認性抜群の県道沿い!広大な敷地を持つ希少な店舗物件をご紹介
この物件のおすすめポイント3選!
1.以前はコンビニだった好立地 県道沿いの高い視認性!
以前はコンビニだった好立地 埼玉県道33号東松山・桶川線沿いに位置し、交通量も多いため高い視認性が確保できます。以前コンビニとして営業していた場所であり、地域での認知度や利用経験がある方も多い可能性があります。沿道サービスや飲食店など、ロードサイドでの集客を目指す事業に最適です。
2.広大な敷地と豊富な駐車場
お車での集客に強い 敷地面積が約533坪と広々としており、駐車場を27台程度確保できる(目安)のは大きな強みです。お客様がお車で来店しやすい環境は、特に郊外型の店舗や、物販、サービス業など、駐車場需要の高いビジネスにとって非常に重要です。
3.元コンビ二で使い勝手がいい
2015年築と比較的新しく、鉄骨造りの平屋建てです。写真からもガラス面が多く、明るく開放的な雰囲気であることが分かります。シンプルな構造のため、様々な業態に合わせて内装のレイアウト変更も比較的しやすいでしょう。
周辺環境と交通アクセス
最寄り駅のJR高崎線 北本駅までは徒歩約31分ですが、県道沿いの立地のため、お車でのアクセスが非常に便利です。
周辺には、物件が面する県道33号東松山・桶川線をはじめ、複数の主要幹線道路が通っています。これにより、近隣エリアだけでなく、広範囲からの集客も期待できます。
また、最寄りの高速道路インターチェンジは、圏央道の桶川北本ICです。ICから物件までは比較的短時間でアクセス可能です。
■アクセス■
★圏央道「桶川北本インターチェンジ」