| 物件名 | 糀谷5丁目貸工場 東京都大田区東糀谷5丁目9-2 | ||
|---|---|---|---|
| 物件種別 | 工場 | 業種 | |
| 所在地 | 東京都大田区東糀谷5丁目9-2 | ||
| 交通 | |||
| 交通 |
東京モノレール「整備場」駅 徒歩30分
京急空港線「大鳥居」駅 徒歩15分 |
||
| 賃料 | 1,210,000円(税込) | 共益費・管理費 | |
| 敷金・保証金 | 6ヶ月 | 敷金・保証金償却 | |
| 礼金 | 1ヶ月 | 更新料 | |
| 土地面積 | 建物床面積 | 361.76m² | |
| 坪単価 | 11,057円 | ||
| 入居日 | |||
| 契約期間 | 5年 | 現況 | 居住中 |
| 賃貸借区分 | 定期賃貸借 | 取引態様 | |
| 建物構造 | 鉄骨造地上2階 | 用途地域 | 準工業地域 |
| 建ぺい率 | 容積率 | ||
| 駐車場区分 | 駐車場料金 | ||
| 接道状況 | 一方公道北 | ||
| 築年月 | 1987年1月 | ||
| こだわり条件 | 準工業地域 工業地域 , 事務所がある , 2階建て以上 | ||
| 備考 | |||
| 最終更新日 | 2026年05月05日 | ||





































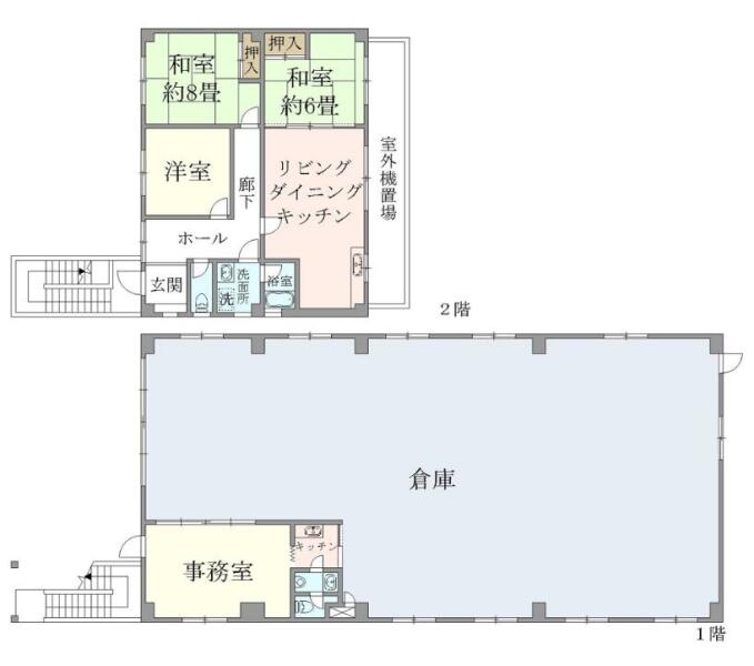
【大田区東糀谷・約109.4坪】
羽田空港アクセス良好!工場・倉庫・事務所に使える2階建て貸拠点
【東京都大田区・貸工場/倉庫】121万円!機能を集約できる自社ビル物件🏠
大田区東糀谷5丁目エリア。京急空港線「大鳥居」駅より徒歩15分。
建物約109.4坪。鉄骨造2階建ての物件です!
1階と2階を合わせて工場・倉庫・事務所として利用でき、用途を分けた効率的な運用が可能🛠️
羽田空港や主要道路へのアクセスも良く、広域物流の拠点としてポテンシャル抜群。
メリット
用途の柔軟性と集約
工場・倉庫・事務所としての利用が可能であり、1階を作業場や保管庫、2階を事務室として使い分けるなど、自社ビルとして機能的なゾーニングが可能です。
大田区エリアの物流利便性
「大鳥居」駅徒歩15分の立地に加え、羽田空港や首都高速へのアクセスが良好なため、全国規模の物流・営業拠点として非常に優れた環境です。
デメリット
現況有姿での引き渡し
「現況有姿」での引き渡しとなるため、入居時に内装の修繕や設備の入れ替え、クリーニング等が必要な場合は、すべて借主側の費用負担となる可能性が高いです。
定期借家契約(5年)
契約期間が定期建物賃貸借契約の5年となっているため、期間満了時に再契約ができない場合は確実に退去しなければなりません。長期的な拠点を検討する場合は事前確認が必要です。