| 物件名 | 鹿浜4丁目貸倉庫 東京都足立区鹿浜4丁目9-3 | ||
|---|---|---|---|
| 物件種別 | 倉庫 | 業種 | |
| 所在地 | 東京都足立区鹿浜4丁目9-3 | ||
| 交通 | 鹿浜橋ICまで約1.2km | ||
| 交通 | 日暮里・舎人ライナー「西新井大師西」駅 徒歩18分 | ||
| 賃料 | 847,000円 | 共益費・管理費 | |
| 敷金・保証金 | 2ヶ月 | 敷金・保証金償却 | |
| 礼金 | 更新料 | 新賃料1ヶ月分 | |
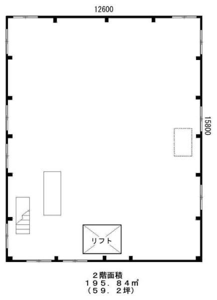
| 土地面積 | 351.96m² | 建物床面積 | 394.92m² |
| 坪単価 | 7,093円 | ||
| 入居日 | 即時 | ||
| 契約期間 | 3年 | 現況 | 空家 |
| 賃貸借区分 | 普通賃貸借 | 取引態様 | |
| 建物構造 | 鉄骨造地上2階 | 用途地域 | 第一種住居地域 |
| 建ぺい率 | 容積率 | ||
| 駐車場区分 | 駐車場料金 | ||
| 接道状況 | |||
| 築年月 | 2006年6月 | ||
| こだわり条件 | 事務所がある , 2階建て以上 | ||
| 備考 | |||
| 最終更新日 | 2026年04月15日 | ||











































【足立区鹿浜|119.4坪|駐車場3台分付・礼金なしの2階建倉庫】
東京都足立区鹿浜4丁目 貸倉庫
床面積合計約120坪の使いやすいサイズ感。都内配送の拠点として、また駐車スペースを重視する事業者様に最適なスペックです。
礼金ゼロで初期費用を抑えて入居可能🏠
首都高速「鹿浜橋IC」約1.2km
・構造:鉄骨造2階建(1階:60.2坪、2階:59.2坪)
・設備:駐車場3台分以上、男女別トイレ2ヶ所、LED照明、リフト有(残置扱い)
・首都高速川口線「鹿浜橋IC」まで車で約4分
・用途地域:第一種住居地域
・築年月:2006年6月築
メリット
初期費用を大幅に抑えられる礼金なし設定
礼金が不要なため、入居時のキャッシュフローを重視する企業様に大きなメリットとなります。
都内では希少な敷地内駐車場3台分確保
建物前面に3台分以上の駐車スペースがあり、社用車や来客用、荷捌きスペースとして多目的に活用可能です。
デメリット
リフトのメンテナンス負担
設置されているリフトは設備ではなく、保守点検や修理費用は全て借主負担となります。稼働状況の確認が必須です。
最寄り駅からの距離
駅から徒歩18分と距離があるため、従業員の通勤には自転車やバイク、またはバス利用の検討が必要です。