| 物件名 | 貸倉庫 埼玉県桶川市赤堀1丁目 | ||
|---|---|---|---|
| 物件種別 | 倉庫 | 業種 | |
| 所在地 | 埼玉県桶川市赤堀1丁目 | ||
| 交通 | 圏央道 桶川北本IC | ||
| 交通 | JR高崎線「桶川」駅 徒歩14分 | ||
| 賃料 | (税込) | 共益費・管理費 | |
| 敷金・保証金 | 敷金・保証金償却 | ||
| 礼金 | 更新料 | ||
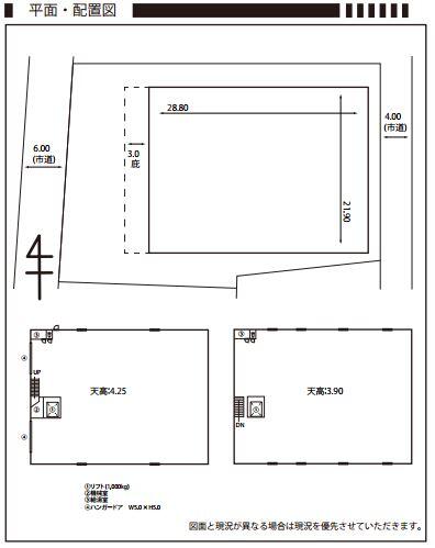
| 土地面積 | 1,219.53m² | 建物床面積 | 1,261.44m² |
| 坪単価 | |||
| 入居日 | |||
| 契約期間 | 現況 | 居住中 | |
| 賃貸借区分 | 取引態様 | 仲介 | |
| 建物構造 | 鉄骨造地上2階 | 用途地域 | 第一種中高層住居専用地域 |
| 建ぺい率 | 容積率 | ||
| 駐車場区分 | 駐車場料金 | ||
| 接道状況 | 角地公道 | ||
| 築年月 | 1991年8月 | ||
| こだわり条件 | |||
| 備考 | |||
| 最終更新日 | 2025年09月20日 | ||










































担当者からのコメント
契約済み
桶川市鴨川1丁目 2階建て倉庫 381坪
◇◆◇こんな物件です◇◆◇
第一種中高層住居専用地域
事務所なし
リフト(1,000kg)
ハンガードア W5.0 × H5.0
天井高:1階4.5m、2階:3.9m
電気・水道・トイレあり
◇◆◇アクセス 周辺環境◇◆◇
•圏央道桶川北本インターチェンジより約 4.4km
•県道12号線(川越栗橋線)至近
•車での利便性に優れた立地
お問い合わせは下記の連絡先まで
桶川市の貸し倉庫・貸し工場・貸し店舗のことなら、
「貸倉庫東京R」にお問い合わせください
新着物件がでたら、連絡が欲しい方は、下記の連絡先まで
048-423-5568
info@souko.tokyo
