| 物件名 | 羽生市三田ケ谷283倉庫 埼玉県羽生市三田ケ谷 | ||
|---|---|---|---|
| 物件種別 | 倉庫 | 業種 | |
| 所在地 | 埼玉県羽生市三田ケ谷 | ||
| 交通 | 東北自動車道 羽生IC | ||
| 交通 | 東武伊勢崎線「羽生」駅 徒歩88分 | ||
| 賃料 | (税込) | 共益費・管理費 | |
| 敷金・保証金 | 敷金・保証金償却 | ||
| 礼金 | 更新料 | ||
| 土地面積 | 建物床面積 | 1,831.67m² | |
| 坪単価 | |||
| 入居日 | |||
| 契約期間 | 現況 | 居住中 | |
| 賃貸借区分 | 取引態様 | 仲介 | |
| 建物構造 | 鉄骨造地上1階 | 用途地域 | 市街化調整区域 |
| 建ぺい率 | 容積率 | ||
| 駐車場区分 | 敷地内 | 駐車場料金 | |
| 接道状況 | 角地公道南10m | ||
| 築年月 | 1990年1月 | ||
| こだわり条件 | |||
| 備考 | |||
| 最終更新日 | 2025年09月20日 | ||










































担当者からのコメント
契約済み
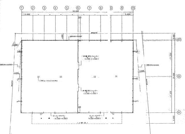
羽生市三田ケ谷 平屋建て倉庫・事務所 554坪
◇◆◇こんな物件です◇◆◇
使いやすい平屋建て
倉庫 1732.50 m²(524.08 坪)
事務所 99.17 m²(30.00 坪)
天井高 7~9m
オーバースライダー︓H4.0m×4.4m
前面道路 10m
大型トラック進入可
市街化調整区域
◇◆◇アクセス 周辺環境◇◆◇
•東北自動車道『羽生』ICより約4.1km
•県道60号線沿い (羽生外野栗橋線沿い)
•車での利便性に優れた立地
お問い合わせは下記の連絡先まで
羽生市市の貸し倉庫・貸し工場・貸し店舗・貸地のことなら、「貸倉庫東京R」にお問い合わせください
新着物件が早く欲しい方は、下記の連絡先まで
048-423-5568
info@souko.tokyo
