| 物件名 | 契約済み 貸工場 埼玉県鴻巣市袋922−2 | ||
|---|---|---|---|
| 物件種別 | 工場 | 業種 | |
| 所在地 | 埼玉県鴻巣市袋 | ||
| 交通 | 圏央道 桶川加納IC | ||
| 交通 | JR高崎線「北鴻巣」駅 徒歩25分 | ||
| 賃料 | (税込) | 共益費・管理費 | |
| 敷金・保証金 | 4ヶ月 | 敷金・保証金償却 | |
| 礼金 | 1ヶ月 | 更新料 | |
| 土地面積 | 1,052.26m² | 建物床面積 | 950.85m² |
| 坪単価 | |||
| 入居日 | 時期指定【2026年3月1日】 | ||
| 契約期間 | 3年 | 現況 | 居住中 |
| 賃貸借区分 | 普通賃貸借 | 取引態様 | 仲介 |
| 建物構造 | 鉄骨造地上2階 | 用途地域 | 工業地域 |
| 建ぺい率 | 容積率 | ||
| 駐車場区分 | 駐車場料金 | ||
| 接道状況 | 一方公道北 | ||
| 築年月 | 1980年12月 | ||
| こだわり条件 | |||
| 備考 | |||
| 最終更新日 | 2026年04月15日 | ||







































担当者からのコメント
契約済み
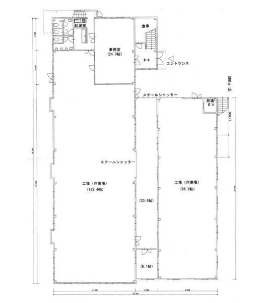
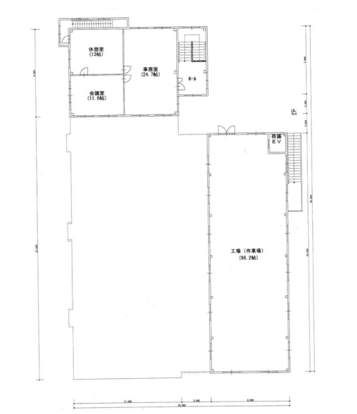
食品加工工場として稼働 セントラルキッチン
埼玉県鴻巢市袋 2階建て工場・事務所 287坪
◇◆◇こんな物件です◇◆◇
工業地域 食品加工工場として稼働
建物1:1F 422.21m² 2F 130.35
建物2:1F 198.83m 2F 130.35m
◇◆◇アクセス 周辺環境◇◆◇
•圏央道桶川加納インターチェンジより約15km
•国道17号線(中山道)至近
•車での利便性に優れた立地
お問い合わせは下記の連絡先まで
鴻巣市の貸し倉庫・貸し工場・貸し店舗・貸地のことなら、「貸倉庫東京R」にお問い合わせください
新着物件の連絡が欲しい方は、下記の連絡先まで
048-423-5568
info@souko.tokyo
