| 物件名 | 契約済み 貸し倉庫 埼玉県さいたま市見沼区片柳1349−1 | ||
|---|---|---|---|
| 物件種別 | 倉庫 | 業種 | |
| 所在地 | 埼玉県さいたま市見沼区片柳 | ||
| 交通 | 首都高速 さいたま見沼IC | ||
| 交通 | 東武野田線「大宮」駅 バス25分 停歩3分 | ||
| 賃料 | 共益費・管理費 | ||
| 敷金・保証金 | 1ヶ月 | 敷金・保証金償却 | |
| 礼金 | 2ヶ月 | 更新料 | 新賃料1ヶ月分 |
| 土地面積 | 建物床面積 | 269.52m² | |
| 坪単価 | 2,331円 | ||
| 入居日 | |||
| 契約期間 | 現況 | 空家 | |
| 賃貸借区分 | 普通賃貸借 | 取引態様 | 仲介 |
| 建物構造 | 鉄骨造地上2階 | 用途地域 | 市街化調整区域 |
| 建ぺい率 | 容積率 | ||
| 駐車場区分 | 敷地内 | 駐車場料金 | |
| 接道状況 | 公道 | ||
| 築年月 | 1992年1月 | ||
| こだわり条件 | |||
| 備考 | |||
| 最終更新日 | 2026年03月06日 | ||






































おすすめコメント
契約済み
【坪単価2,300円】
リフト&クレーン付き!81坪・月額19万円の格安倉庫
・さいたま市見沼区片柳
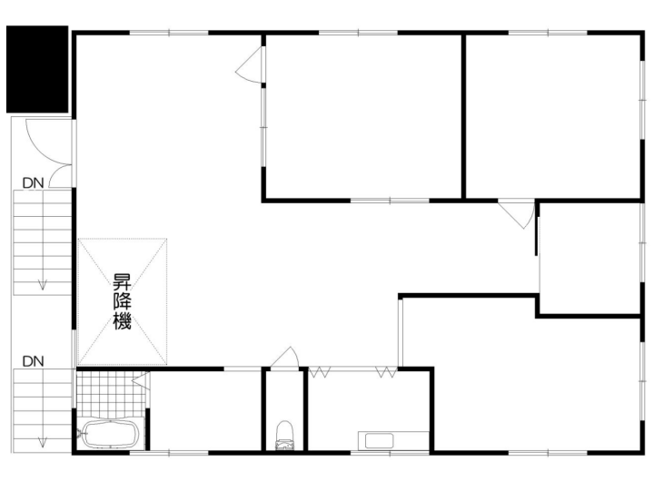
・建物面積約81.52坪(269.52m²)、鉄骨造2階建て
・昇降機(リフト)と走行クレーンが残置されており、荷物の昇降や移動に便利です
・坪単価約2,330円と非常にリーズナブルな設定です
・駐車場は別途契約で、1台につき月額5,000円で利用可能です
・エアコン2基・照明器具は残置物(無償貸与)扱いとなります
・インフラは東京電力、プロパンガス(LPG)、地下水、浄化槽です
・年1回の浄化槽汲み取り費用は借主負担となります
・保証会社加入必須
【メリット】
コスト: 坪単価約2,330円、月額19万円という賃料は、80坪クラスの物件としてはエリア内でも屈指の安さです。
設備: 昇降機(リフト)と走行クレーンが付いており、後付けすると高額な設備が最初から利用できる点は大きなメリットです。
駐車場: 敷地内駐車場が確保可能(月額5,000円/台)で、車両運用にも対応できます。
【デメリット(事前の注意点)】
インフラ: 上水道ではなく地下水、下水ではなく浄化槽(年1回汲み取り負担あり)のため、維持管理の手間や水質の確認が必要です。
アクセス: 大宮駅からバス25分と距離があり、公共交通機関でのアクセスは不便です(車移動が前提)。
設備保証: クレーンやリフト、エアコンは「無償貸与」や「残置物」扱いである可能性が高く、故障時の修理費用の負担区分を確認する必要があります。