| 物件名 | 倉庫・事務所・営業所 東京都国分寺市光町1-29-10 | ||
|---|---|---|---|
| 物件種別 | 倉庫 | 業種 | |
| 所在地 | 東京都八王子市光町1丁目29−10 | ||
| 交通 | 中央自動車道 国立府中IC | ||
| 交通 | JR中央線「国立」駅 徒歩9分 | ||
| 賃料 | 1,870,000円(税込) | 共益費・管理費 | |
| 敷金・保証金 | 4ヶ月 | 敷金・保証金償却 | |
| 礼金 | 1ヶ月 | 更新料 | |
| 土地面積 | 建物床面積 | 634.1m² | |
| 坪単価 | 9,756円 | ||
| 入居日 | 相談 | ||
| 契約期間 | 10年 | 現況 | 空家 |
| 賃貸借区分 | 定期賃貸借 | 取引態様 | |
| 建物構造 | 鉄骨造地上3階 | 用途地域 | 第二種住居地域 |
| 建ぺい率 | 容積率 | ||
| 駐車場区分 | 駐車場料金 | ||
| 接道状況 | 一方公道 | ||
| 築年月 | 1994年3月 | ||
| こだわり条件 | 営業所 , 商品保管倉庫 , 準工業地域 工業地域 , 事務所がある , 2階建て以上 | ||
| 備考 | |||
| 最終更新日 | 2026年05月05日 | ||







































【国立駅徒歩9分】
40台駐車可!RC造191坪の一棟貸し拠点、事務所・営業所に最適
【東京都国分寺市・倉庫事務所】1,870,000円(税込)!駅近の利便性と圧倒的な機動力を備えたRC一棟拠点🏠
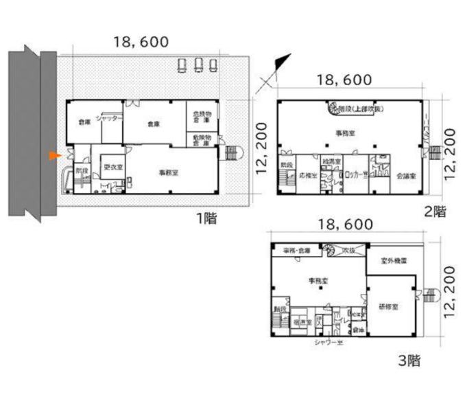
国分寺市光町エリア。JR中央線「国立」駅より徒歩わずか9分。西側約6mの道路に面した、鉄筋コンクリート造3階建ての機能的な一棟貸し物件です!
合計面積は約191.66坪。最大の特徴は、駅近でありながら敷地内に約40台分の駐車スペースを確保している点。営業車両の多い法人様や、スタッフの通勤・来客対応に卓越したポテンシャルを発揮します🚗
建物内には事務室、会議室、研修室、さらにはシャワー室や更衣室まで完備。営業所や統合オフィスとして即座に稼働できる環境が整っています。
現在空室につき即日入居可能。国立エリアで、利便性と機能性を高い次元で両立させた戦略的拠点を求める事業者様に推奨いたします。
メリット
人材確保と車両運用の同時最適化
国立駅徒歩9分の好立地はスタッフ採用に有利に働き、40台分の駐車場が日々の営業機動力を支えます。この2点を両立する物件は地域内でも非常に稀少です。
ビジネスを加速させる充実の館内施設
研修室や会議室、シャワー室など、多様なワークスタイルに対応する設備が統合されています。一棟貸しならではの独立性と管理のしやすさも大きな魅力です。
デメリット
用途に合わせたスペックの確認
天井高が2.5mであるため、大型資材の保管よりも、事務所や軽作業、営業拠点としての利用に真価を発揮します。自社の操業形態に合致するか詳細な現認を推奨します。
中長期的な契約スキームの把握
10年間の定期建物賃貸借契約が基本となります。将来の拠点戦略を見据え、契約更新や再契約の可能性について事前に精査しておくことが望ましいです。