| 物件名 | 立飛ビル2号館 東京都立川市栄町6丁目1-3 | ||
|---|---|---|---|
| 物件種別 | 倉庫 | 業種 | |
| 所在地 | 東京都立川市栄町6丁目1-3 | ||
| 交通 | 中央自動車道 国立府中IC | ||
| 交通 | 多摩都市モノレール線「泉体育館」駅 徒歩9分 | ||
| 賃料 | 19,800,000円(税込) | 共益費・管理費 | |
| 敷金・保証金 | 12ヶ月 | 敷金・保証金償却 | |
| 礼金 | 更新料 | ||
| 土地面積 | 8,307.79m² | 建物床面積 | 9,122.52m² |
| 坪単価 | 7,175円 | ||
| 入居日 | 相談 | ||
| 契約期間 | 現況 | 空家 | |
| 賃貸借区分 | 定期賃貸借 | 取引態様 | |
| 建物構造 | 鉄骨造地上3階 | 用途地域 | 準工業地域 |
| 建ぺい率 | 容積率 | ||
| 駐車場区分 | 駐車場料金 | ||
| 接道状況 | 公道 | ||
| 築年月 | 1985年11月 | ||
| こだわり条件 | 営業所 , 精密工場 , 研究所 , 準工業地域 工業地域 , 事務所がある , 2階建て以上 | ||
| 備考 | |||
| 最終更新日 | 2026年05月05日 | ||









































担当者からのコメント
【立川市・2760坪】準工業地域×駅徒歩9分。敷地2500坪超の巨大RC拠点
・駅徒歩9分の大型事業用物件です
・広大なスケール ・準工業地域
・倉庫・工場・研究所・データセンターなど
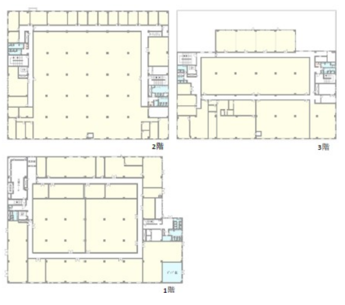
・鉄筋コンクリート造3階建て
・1階フロアだけで約1000坪(3347m²)あります
・天井高は1階3.3m、2階3.0m、3階2.7mを確保
・荷物用エレベーター等の設備については要確認
メリット
圧倒的規模: 延床約2760坪、敷地約2500坪は、都下エリアでも希少なメガスペックです。
立地と用途: 準工業地域かつ駅徒歩9分という好立地で、人材確保と操業環境を両立できます。
コスト条件: 礼金0・更新料0のため、初期投資と長期運用のランニングコストを抑えられます。
デメリット
天井高: 1階3.3m〜3階2.7mと、物流倉庫としてはやや低めのため、ハイスタック(高積み)保管には向きません。
築年数: 1985年築のため、設備等の経年劣化や耐震性能については確認が必要です。
契約形態: 定期建物賃貸借契約となるため、契約期間や再契約の条件を確認する必要があります。