| 物件名 | 契約済み 工場 埼玉県戸田市氷川町3丁目 | ||
|---|---|---|---|
| 物件種別 | 工場 | 業種 | |
| 所在地 | 埼玉県戸田市氷川町3丁目 | ||
| 交通 | 首都高速 戸田南IC | ||
| 交通 | JR埼京線「戸田公園」駅 徒歩28分 | ||
| 賃料 | 418,000円(税込) | 共益費・管理費 | |
| 敷金・保証金 | 3ヶ月 | 敷金・保証金償却 | |
| 礼金 | 1ヶ月 | 更新料 | 新賃料1ヶ月分 |
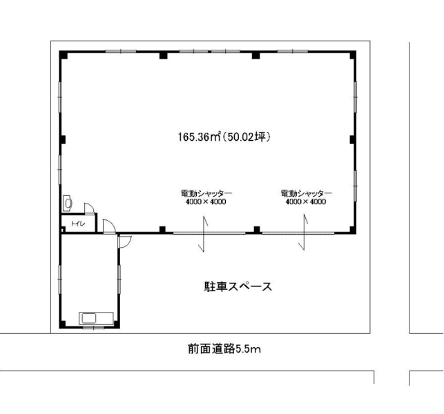
| 土地面積 | 273m² | 建物床面積 | 165.36m² |
| 坪単価 | 8,360円 | ||
| 入居日 | 相談 | ||
| 契約期間 | 2年 | 現況 | |
| 賃貸借区分 | 取引態様 | 仲介 | |
| 建物構造 | 鉄骨造地上1階 | 用途地域 | 工業地域 |
| 建ぺい率 | 容積率 | ||
| 駐車場区分 | 敷地内 | 駐車場料金 | |
| 接道状況 | 一方公道 | ||
| 築年月 | 1998年6月 | ||
| こだわり条件 | |||
| 備考 | |||
| 最終更新日 | 2026年05月05日 | ||







































【戸田・50坪】
契約済み
首都高・外環IC至近!前面駐車場4台可、角地の鉄骨造工場
【埼玉県戸田市・工場】418,000円(税別)!高速ネットワーク直結、車両機動力を極大化する50坪の一括拠点🏠
戸田市氷川町3丁目エリア。JR埼京線「戸田公園」駅利用。首都高速5号池袋線および東京外環自動車道の各ICに至近な、物流・製造に最適な鉄骨造平屋物件です!
建物面積は約165.36m²(約50.02坪)。最大の特徴は、前面に3〜4台確保された駐車スペースと、角地立地による抜群の搬入出利便性です🚗
工業地域内のため多様な業種に対応可能。現在空家につき相談可能。戸田エリアで、都心への機動力と使い勝手の良さを両立させた自社拠点を求める事業者様に推奨いたします。
メリット
広域配送のハブとなる卓越したICアクセス
首都高・外環の主要ICが至近であり、輸送時間の短縮と効率化をダイレクトに実現。配送コストの最適化に大きく貢献する立地です。
角地×前面駐車による高いオペレーション能力
最大4台の車両を前面に配置でき、角地の特性を活かしたスムーズな車両アプローチが可能。日々の入出庫業務のストレスを軽減します。
デメリット
実測によるスペックの精査
詳細図面がないため、シャッター高や天井の有効高、電力容量など、実務上の操業要件に適合するか内覧時に詳細なチェックが必要です。
通勤アクセスの対策
最寄り駅から距離があるため、従業員の確保にあたっては、敷地内の駐車・駐輪キャパシティを活かした通勤支援策の検討が望ましいです。