| 物件名 | 貸し倉庫 東京都大田区仲池上2丁目 | ||
|---|---|---|---|
| 物件種別 | 倉庫 | 業種 | |
| 所在地 | 東京都大田区仲池上2丁目 | ||
| 交通 | |||
| 交通 | 都営浅草線「西馬込」駅 徒歩11分 | ||
| 賃料 | 3,300,000円(税込) | 共益費・管理費 | |
| 敷金・保証金 | 10ヶ月 | 敷金・保証金償却 | |
| 礼金 | 1ヶ月 | 更新料 | 新賃料1ヶ月分 |
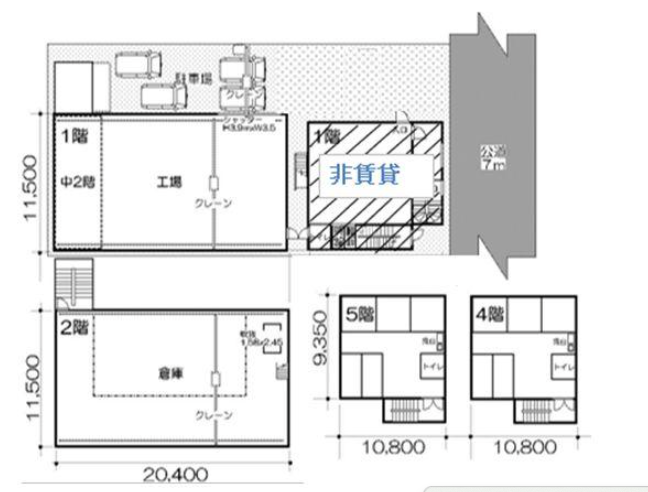
| 土地面積 | 建物床面積 | 753.53m² | |
| 坪単価 | 14,474円 | ||
| 入居日 | |||
| 契約期間 | 2年 | 現況 | 空家 |
| 賃貸借区分 | 定期賃貸借 | 取引態様 | |
| 建物構造 | 鉄骨造地上5階 | 用途地域 | 準工業地域 |
| 建ぺい率 | 容積率 | ||
| 駐車場区分 | 駐車場料金 | ||
| 接道状況 | 公道 | ||
| 築年月 | 1971年--月 | ||
| こだわり条件 | 精密工場 , 準工業地域 工業地域 , 事務所がある | ||
| 備考 | |||
| 最終更新日 | 2026年05月05日 | ||











































【大田区・228坪】
防音スタジオ・クレーン完備!西馬込駅徒歩圏の一括貸し工場倉庫
【東京都大田区・貸工場倉庫】3,300,000円(税込)!防音スタジオとクレーン設備がビジネスを多角化させる、228坪のプレミアム拠点🏠
大田区仲池上エリア。都営浅草線「西馬込」駅より徒歩11分、準工業地域内。製造・保管機能とクリエイティブなスタジオ機能を高い次元で両立させた、鉄骨造・RC造の複合一括貸し物件です!
合計床面積は約753.53m²(約228坪)。最大の特徴は、最高4.5mの天井高を活かした工場スペースと、既設の防音スタジオ、そして管理業務を支える5階建て事務所棟の存在です🚗
メリット
業種を選ばない卓越した設備ポテンシャル
クレーンによる重量物荷役から、スタジオでの音響・撮影作業まで、一つの拠点で全く異なる機能を完結可能。7m幅の接道により大型車両の運用もスムーズで、物流効率も極めて良好です。
独立性の高い一棟・一括貸しの優位性
事務所棟と工場棟を使い分けることで、情報セキュリティの確保や効率的な業務フローの構築が可能。城南エリアでの企業プレゼンスを高めるフラッグシップ拠点として機能します。
デメリット
初期投資と契約期間の戦略的判断
保証金10ヶ月分の預託が必要となるため、中長期的な収支シミュレーションが不可欠です。定期借家2年という期間を踏まえ、再契約に関する条項を事前に精査することを推奨します。
建物の経年状況と設備の詳細チェック
昭和46年築の物件であるため、各階の床荷重、電力容量、防音性能の実測値など、実務上の具体的な操業要件に適合しているか内覧時に詳細な確認を行うことが重要です。