| 物件名 | 契約済み 中村倉庫 神奈川県横浜市港北区新羽町472 | ||
|---|---|---|---|
| 物件種別 | 倉庫 | 業種 | |
| 所在地 | 神奈川県横浜市港北区新羽町472 | ||
| 交通 | 港北IC 約1.8km | ||
| 交通 | 横浜市営地下鉄線ブルーライン「北新横浜」駅 徒歩4分 | ||
| 賃料 | 共益費・管理費 | ||
| 敷金・保証金 | 4ヶ月 | 敷金・保証金償却 | 1ヶ月 |
| 礼金 | 2ヶ月 | 更新料 | 新賃料1ヶ月分 |
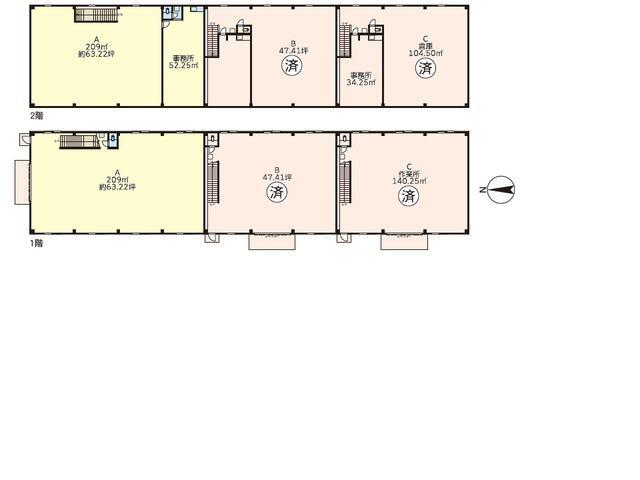
| 土地面積 | 建物床面積 | 418m² | |
| 坪単価 | 11,005円 | ||
| 入居日 | 相談 | ||
| 契約期間 | 3年 | 現況 | 居住中 |
| 賃貸借区分 | 普通賃貸借 | 取引態様 | |
| 建物構造 | 鉄骨造 | 用途地域 | 準工業地域 |
| 建ぺい率 | 容積率 | ||
| 駐車場区分 | 駐車場料金 | ||
| 接道状況 | |||
| 築年月 | 1991年6月 | ||
| こだわり条件 | |||
| 備考 | |||
| 最終更新日 | 2026年05月05日 | ||




































契約済み
【北新横浜駅徒歩4分|126.44坪|駅近・高速至近の2階建貸倉庫・事務所】
神奈川県横浜市港北区新羽町
一括貸しのため、1階を作業所・倉庫、2階を事務所として
スタッフの通勤利便性を重視する事業者様に最適です。
駅徒歩4分の超好立地、配送拠点・営業所に最適な一括貸し物件🏠
・交通:横浜市ブルーライン「北新横浜」駅徒歩4分
・最寄りIC:第三京浜道路「港北IC」約1.8km(車で約5分)
・面積:建物合計418.00m²(126.44坪)
・構造:鉄骨造地上2階建
・設備:トイレ、照明、駐車場スペース有、シャッター
・用途地域:準工業地域
・築年月:1991年6月(築34年)
・入居時期:相談
メリット
採用・通勤に強い駅徒歩4分の立地
ブルーライン沿線の主要駅から徒歩圏内のため、スタッフの確保が容易になり、公共交通機関での来客対応もスムーズです。
物流効率を最大化する広域アクセス
第三京浜「港北IC」まで車で約5分と至近。横浜市内だけでなく都内や川崎方面への配送ルートも確保しやすい立地環境です。
デメリット
解約時の償却費用
解約時に賃料1ヶ月分が償却される契約条件のため、長期的なコストシミュレーションが必要となります。
建物・設備の経年変化
1991年築のため、最新の設備と比較すると省エネ性等で差が出る場合があります。現況を優先するため事前の現地確認を推奨します。