| 物件名 | 本行徳貸倉庫 千葉県市川市本行徳2554-55 | ||
|---|---|---|---|
| 物件種別 | 倉庫 | 業種 | |
| 所在地 | 千葉県市川市本行徳2554-55 | ||
| 交通 | 首都高速湾岸線 千鳥町IC | ||
| 交通 | JR京葉線「市川塩浜」駅 徒歩23分 | ||
| 賃料 | 2,640,000円 | 共益費・管理費 | |
| 敷金・保証金 | 10ヶ月 | 敷金・保証金償却 | 1ヶ月 |
| 礼金 | 2ヶ月 | 更新料 | 新賃料1ヶ月分 |
| 土地面積 | 1,322m² | 建物床面積 | 2,376m² |
| 坪単価 | 3,673円 | ||
| 入居日 | 相談 | ||
| 契約期間 | 3年 | 現況 | 空家 |
| 賃貸借区分 | 普通賃貸借 | 取引態様 | |
| 建物構造 | 鉄骨造地上3階 | 用途地域 | 工業専用地域 |
| 建ぺい率 | 容積率 | ||
| 駐車場区分 | 駐車場料金 | ||
| 接道状況 | |||
| 築年月 | 1983年11月 | ||
| こだわり条件 | 営業所 , 配送センター , 商品保管倉庫 , 準工業地域 工業地域 , 工業専用地域 , 2階建て以上 , 500坪~ | ||
| 備考 | |||
| 最終更新日 | 2026年05月05日 | ||









































【市川市本行徳・約718坪・前面道路10m×工業専用地域の大型拠点】
【市川市本行徳・倉庫】
大型車対応の接道環境と広大な駐車スペース完備🏠
・JR京葉線 市川塩浜駅 徒歩23分
・最寄りIC:首都高速湾岸線 千鳥町IC(約2.5km)
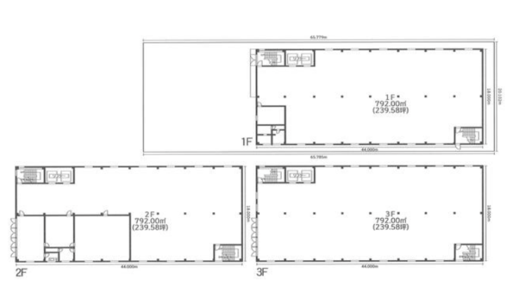
・面積:2,376.00m²(718.74坪) [各階 792.00m²]
・構造:鉄骨造3階建
・用途地域:工業専用地域
・築年月:1983年11月
・設備:商用車約10台分駐車スペース(無料)、前面道路10m、大型シャッター
工業専用地域内のため、周辺を気にせず物流・製造拠点としてフル活用可能。外環道・首都高速へのアクセスも抜群で、広域配送に最適です。
p>メリット
大型車両の離合がスムーズな10m私道
前面道路の幅員が約10mあり、接面も20mと広いため、大型トラックの頻繁な出入りや荷役作業を安全かつ効率的に行えます。
商用車10台前後の無料駐車スペース
都心近郊の大型物件としては珍しく、約10台分の駐車スペースが賃料に含まれています。車両台数の多い事業者様のコスト削減に直結します。
デメリット
築年数による設備確認の必要性
1983年築のため、空調やリフト、電気容量、耐震強度については現況を詳細に確認し、必要に応じた改修計画を立てる必要があります。
最寄り駅からの距離とスタッフ確保
駅から徒歩23分を要するため、スタッフの募集時には送迎バスの運行やマイカー通勤の許可など、通勤手段の整備が成功の鍵となります。