| 物件名 | 吉川倉庫(作業所) 埼玉県吉川市平沼1丁目 | ||
|---|---|---|---|
| 物件種別 | 倉庫 | 業種 | |
| 所在地 | 埼玉県吉川市平沼1丁目 | ||
| 交通 | 常磐自動車道 三郷スマートIC | ||
| 交通 | JR武蔵野線「吉川」駅 徒歩13分 | ||
| 賃料 | 350,000円(税込) | 共益費・管理費 | |
| 敷金・保証金 | 1050000円 | 敷金・保証金償却 | |
| 礼金 | 1ヶ月 | 更新料 | 新賃料1ヶ月分 |
| 土地面積 | 建物床面積 | 245m² | |
| 坪単価 | 4,722円 | ||
| 入居日 | 時期指定 | ||
| 契約期間 | 現況 | 空家 | |
| 賃貸借区分 | 普通賃貸借 | 取引態様 | |
| 建物構造 | 鉄骨造地上2階 | 用途地域 | |
| 建ぺい率 | 容積率 | ||
| 駐車場区分 | 駐車場料金 | ||
| 接道状況 | |||
| 築年月 | 1999年9月 | ||
| こだわり条件 | 営業所 , 事務所がある , 2階建て以上 | ||
| 備考 | |||
| 最終更新日 | 2026年05月05日 | ||







































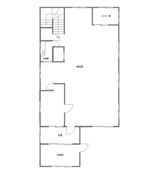
【吉川市平沼・約74.1坪】
吉川駅徒歩13分!即稼働可能な貸倉庫・作業所
【埼玉県吉川市・貸倉庫/作業所】35万円!通勤に便利な駅徒歩圏内🏠
吉川市平沼1丁目エリア。JR武蔵野線「吉川」駅徒歩13分。
建物約74.1坪。使い勝手の良い鉄骨造の倉庫・作業所です!
共益費や管理費はかからず、ランニングコストを抑えられます💰
現況空家のため、お急ぎの移転やスピーディな拠点立ち上げにも対応。
通勤アクセスとコストパフォーマンスを重視する企業様に最適
メリット
駅からの徒歩アクセス
吉川駅から徒歩13分という立地は、倉庫・作業所物件としては比較的駅に近く、公共交通機関を利用する従業員の通勤負担を軽減できます。
賃料のコストパフォーマンス
約74.1坪の広さを確保しながら月額賃料35万円に抑えられており、管理費等も発生しないため、中長期での固定費削減に貢献します。
即時引き渡し可能
現況が空家であり「即時」の引き渡しが可能なため、急な事業拡大や移転計画にも柔軟かつスピーディに対応できます。
デメリット
初期費用(敷金)の負担
賃料は割安ですが、契約時に敷金が105万円(賃料の3ヶ月分相当)必要となるため、初期投資としてのまとまった現金の準備が必要です。
詳細な設備状況の確認
資料上では用途地域や前面道路の幅員、駐車場の有無、トイレ等のインフラ設備 自社の業務に適合するか内見時の入念なチェックが不可欠です。
建物の老朽化
1999年(平成11年)9月築と築25年以上が経過しているため、屋根や外壁、建具などの経年劣化具合を事前に確認しておく必要があります。