| 物件名 | Cozy千駄ヶ谷 東京都渋谷区千駄ヶ谷2丁目 | ||
|---|---|---|---|
| 物件種別 | 店舗 | 業種 | |
| 所在地 | 東京都渋谷区千駄ヶ谷2丁目34-5 | ||
| 交通 | |||
| 交通 | JR中央線「千駄ケ谷」駅 徒歩7分 | ||
| 賃料 | 792,000円 | 共益費・管理費 | |
| 敷金・保証金 | 6ヶ月 | 敷金・保証金償却 | |
| 礼金 | 2ヶ月 | 更新料 | 新賃料1ヶ月分 |
| 土地面積 | 建物床面積 | 118.52m² | |
| 坪単価 | |||
| 入居日 | 相談 | ||
| 契約期間 | 2年 | 現況 | 空家 |
| 賃貸借区分 | 普通賃貸借 | 取引態様 | |
| 建物構造 | 木造地上2階 | 用途地域 | |
| 建ぺい率 | 容積率 | ||
| 駐車場区分 | 駐車場料金 | ||
| 接道状況 | |||
| 築年月 | 2026年1月 | ||
| こだわり条件 | |||
| 備考 | |||
| 最終更新日 | 2026年05月05日 | ||









































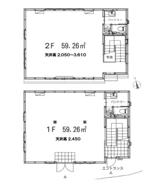
【渋谷区千駄ヶ谷・約25.6坪】
国立競技場駅徒歩8分!新築デザイナーズの一棟貸しオフィス
【東京都渋谷区・貸事務所】79.2万円!デザイン性の高い自社ビル物件🏠
渋谷区千駄ヶ谷2丁目エリア。都営大江戸線「国立競技場」駅徒歩8分。
建物約25.6坪。2026年1月完成の希少な新築デザイナーズ一棟貸しです!
2階は天井が高く、3方向から自然光が差し込む開放的な空間☀️
オープンキッチンやエアコン、トイレ2ヶ所など設備も充実しています。
企業のブランドイメージを高めたい企業様に最適
メリット
新築の一棟貸しという希少性
都心部において、約25坪という手頃なサイズで「新築デザイナーズ」「一棟貸し」の条件が揃う物件は極めて希少であり、自社ビルとしての高いブランディング効果が期待できます。
優れたデザインと設備
高い天井、3方向採光による明るさに加え、オープンキッチンや複数トイレが完備されており、従業員のモチベーション向上や、来客時の印象アップに直結します。
複数路線が使える好立地
都営大江戸線、JR総武線、東京メトロ副都心線の3駅が徒歩8〜9分圏内にあり、都内全域へのアクセスが非常にスムーズです。
デメリット
初期費用の高さ
賃料79.2万円、管理費5.5万円に対し、敷金が6ヶ月(475.2万円)、礼金が2ヶ月(158.4万円)と高額に設定されており、契約時に多額の初期費用(現金の持ち出し)が必要となります。
1階・2階の動線分離
一棟貸し(約25.6坪)であるため、フロアが1階と2階に分かれています。部署間の連携や来客動線など、メゾネット特有のレイアウトや動線計画を事前に検討しておく必要があります。