| 物件名 | 契約済み 鹿浜2丁目倉庫・事務所 東京都足立区鹿浜2丁目7−17 | ||
|---|---|---|---|
| 物件種別 | 倉庫 | 業種 | |
| 所在地 | 東京都足立区鹿浜2丁目 | ||
| 交通 | 首都高速 鹿浜橋IC | ||
| 交通 | 日暮里・舎人ライナー「西新井大師西」駅 徒歩32分 | ||
| 賃料 | (税込) | 共益費・管理費 | |
| 敷金・保証金 | 2ヶ月 | 敷金・保証金償却 | |
| 礼金 | 1ヶ月 | 更新料 | 新賃料1ヶ月分 |
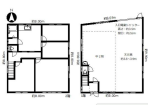
| 土地面積 | 建物床面積 | 145.2m² | |
| 坪単価 | 11,202円 | ||
| 入居日 | 相談 | ||
| 契約期間 | 2年 | 現況 | 空家 |
| 賃貸借区分 | 普通賃貸借 | 取引態様 | 仲介 |
| 建物構造 | 鉄骨造地上2階 | 用途地域 | 第一種住居地域 |
| 建ぺい率 | 容積率 | ||
| 駐車場区分 | 駐車場料金 | ||
| 接道状況 | 一方公道 | ||
| 築年月 | 1995年3月 | ||
| こだわり条件 | |||
| 備考 | |||
| 最終更新日 | 2026年05月05日 | ||








































契約済み
【足立鹿浜IC・350m】
駐車場110m²付!電動シャッター完備の2階建倉庫・事務所
【東京都足立区・貸倉庫事務所】492,800円(税別)!高速IC至近の機動力と110m²の専用パーキングを誇る、44坪の実戦的一括拠点🏠
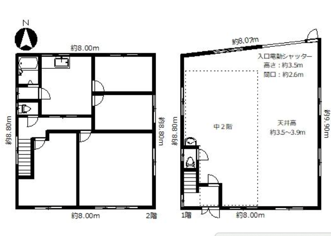
足立区鹿浜2丁目エリア。首都高速川口線「足立鹿浜」ICよりわずか350m。車両機動力と配送効率を極限まで高めた、鉄骨造2階建ての機能的な貸倉庫です!
延床面積は約145.20m²(約43.92坪)。最大の特徴は、IC至近の卓越したアクセス性能と、建物前面に確保された約110m²の広大な駐車スペース、そして高さ約3.5mの電動シャッターです🚗
メリット
物流リードタイムを短縮するIC至近の立地
足立鹿浜ICまで350mという立地は、都心および埼玉方面への配送において圧倒的な利便性を発揮。110m²の専用スペースでの荷役作業もスムーズに行えます。
現場の利便性を高める充実の付帯インフラ
3.5m高の電動シャッターが日々の入出庫をサポート。さらに敷地内のプレハブは、倉庫兼営業所としての機能性を高める希少な付加価値となります。
デメリット
公共交通機関によるアクセスの補完
最寄り駅から距離があるため、スタッフの採用にあたっては、バス便の活用や広い駐車スペースを活かしたマイカー通勤の推奨など、通勤体制の整備が重要となります。