| 物件名 | オフィス ワン 埼玉県さいたま市大宮区北袋町1丁目285-1 | ||
|---|---|---|---|
| 物件種別 | 事務所 | 業種 | |
| 所在地 | 埼玉県さいたま市大宮区北袋町1丁目285-1 | ||
| 交通 | 首都高速 「新都心」出入口 | ||
| 交通 | JR京浜東北線「さいたま新都心」駅 バス10分 停歩1分 | ||
| 賃料 | 990,000円(税込) | 共益費・管理費 | 5,500円 |
| 敷金・保証金 | 6ヶ月 | 敷金・保証金償却 | 1ヶ月分 |
| 礼金 | 更新料 | 新賃料1.5ヶ月分 | |
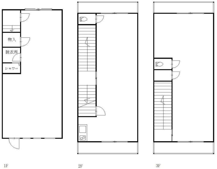
| 土地面積 | 建物床面積 | 157.68m² | |
| 坪単価 | 20,759円 | ||
| 入居日 | 相談 | ||
| 契約期間 | 現況 | 空家 | |
| 賃貸借区分 | 定期賃貸借 | 取引態様 | 仲介 |
| 建物構造 | 鉄骨造地上2階 | 用途地域 | |
| 建ぺい率 | 容積率 | ||
| 駐車場区分 | 敷地内 | 駐車場料金 | |
| 接道状況 | 一方南 | ||
| 築年月 | 2026年2月 | ||
| こだわり条件 | 事務所がある , 2階建て以上 | ||
| 備考 | |||
| 最終更新日 | 2026年05月05日 | ||








































【さいたま新都心・徒歩10分】駐車場付の一棟貸し!市役所至近の戦略的オフィス
【さいたま市大宮区・一括貸事務所】990,000円(税込)!駐車場一体型の利便性と市役所至近のステータスを兼ね備えた、3階建て拠点🏠
さいたま市大宮区北袋町1丁目エリア。JR「さいたま新都心」駅より徒歩10分、新さいたま市役所庁舎(予定)より徒歩3分。車両機動力と事務環境を究極に高めた、鉄骨造の一棟貸し物件です!
合計床面積は約157.68m²(約47.7坪)。最大の特徴は、1階に専用駐車場を備えた一体型の構造と、シャワー室やミニキッチン完備による充実した就業環境です🚗
鉄骨造3階建て、さいたま新都心エリアで、独立性の高い自社専用拠点とスムーズな車両運用を求める事業者様に推奨いたします。
メリット
駐車場確保のストレスを解消する一体型設計
1階が駐車場となっているため、営業活動や役員車両の管理が容易。外部の月極駐車場を契約する手間とコストを削減し、一拠点完結の機動的なオペレーションを実現します。
エリア再開発の恩恵を享受する立地優位性
新市役所庁舎の近接地という将来性の高い立地は、企業の認知度向上や取引先への信頼感に直結。駅からの徒歩アクセスも良好で、スタッフの採用においても強力な武器となります。
デメリット
契約開始時のキャッシュフロー計画
保証金6ヶ月・償却1ヶ月という設定につき、初期費用が大きな金額となります。長期の拠点活用による業務効率化と立地メリットを鑑みた、前向きな投資判断が望まれます。
フロア分散による社内動線の確認
各フロアが独立した3階建て構造のため、部署間の連携や来客対応のフローをあらかじめシミュレーションし、一棟貸しの自由度を活かした最適な配置を行うことが重要です。